- 価格
-
2640万円~1億5480万円
月々の支払い額を見る
- 専有面積
-
39.34㎡~128.57㎡
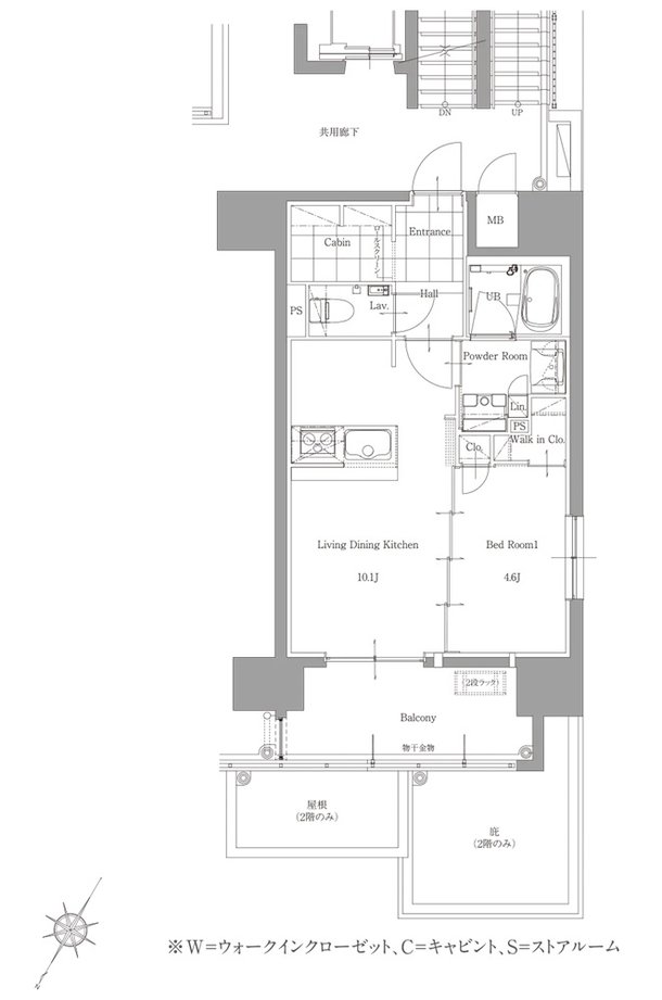
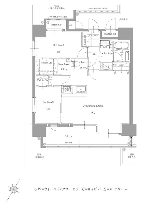
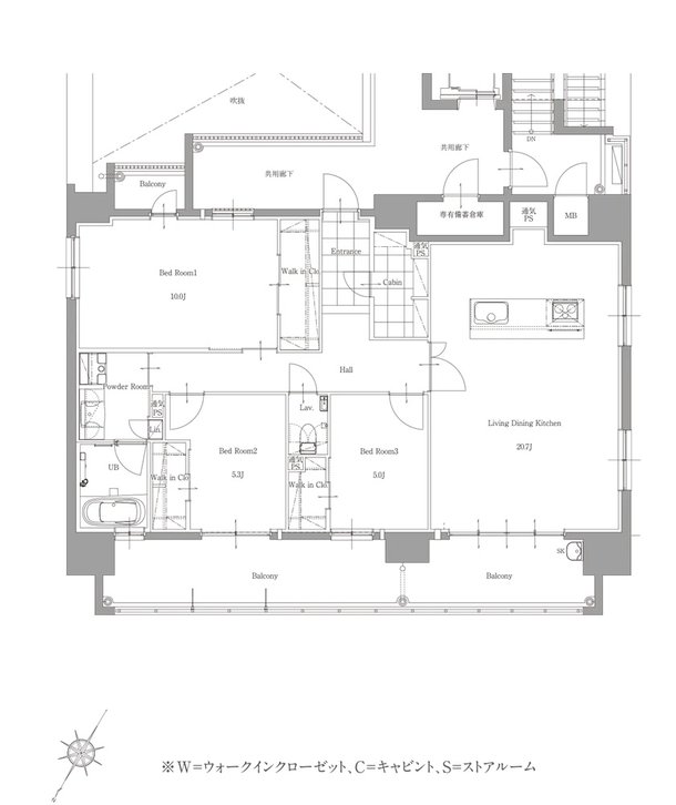
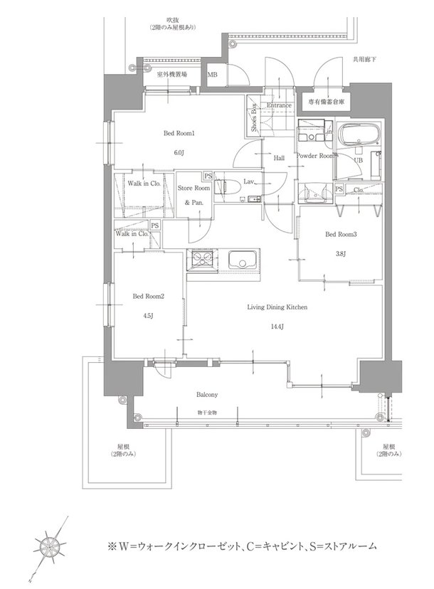
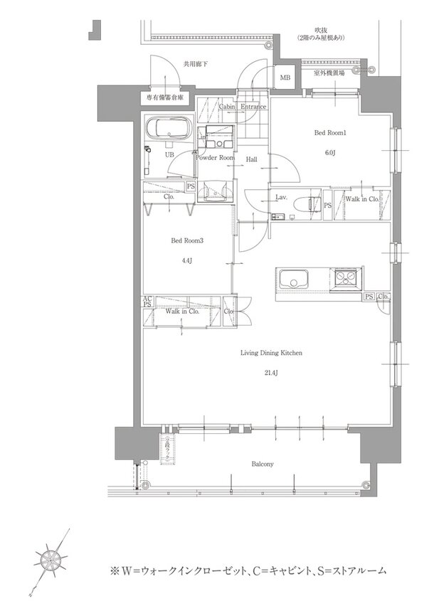
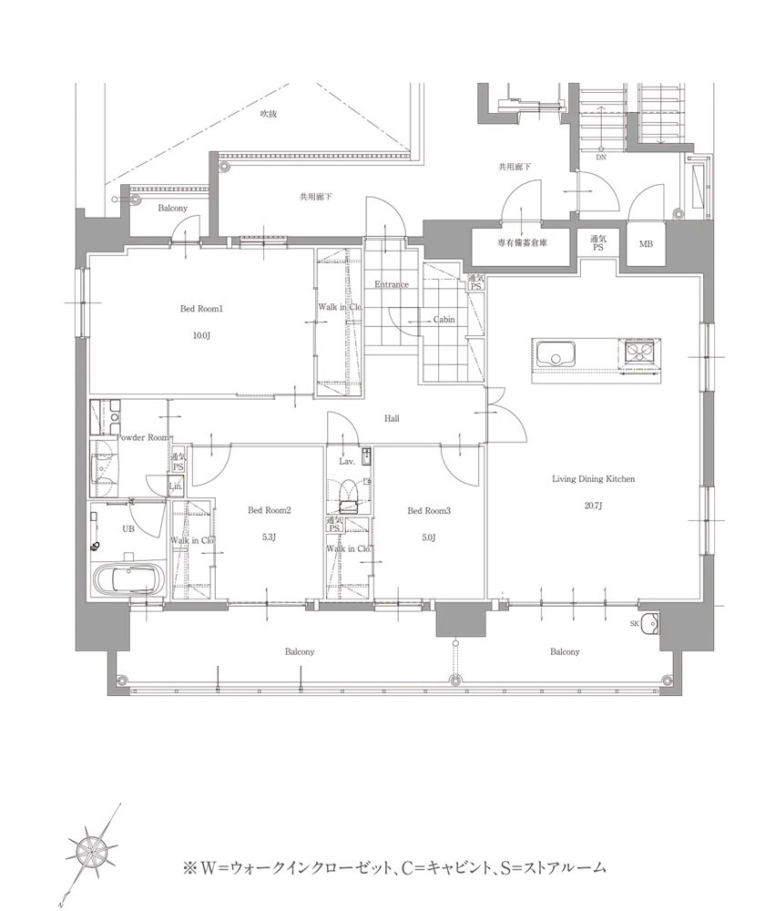
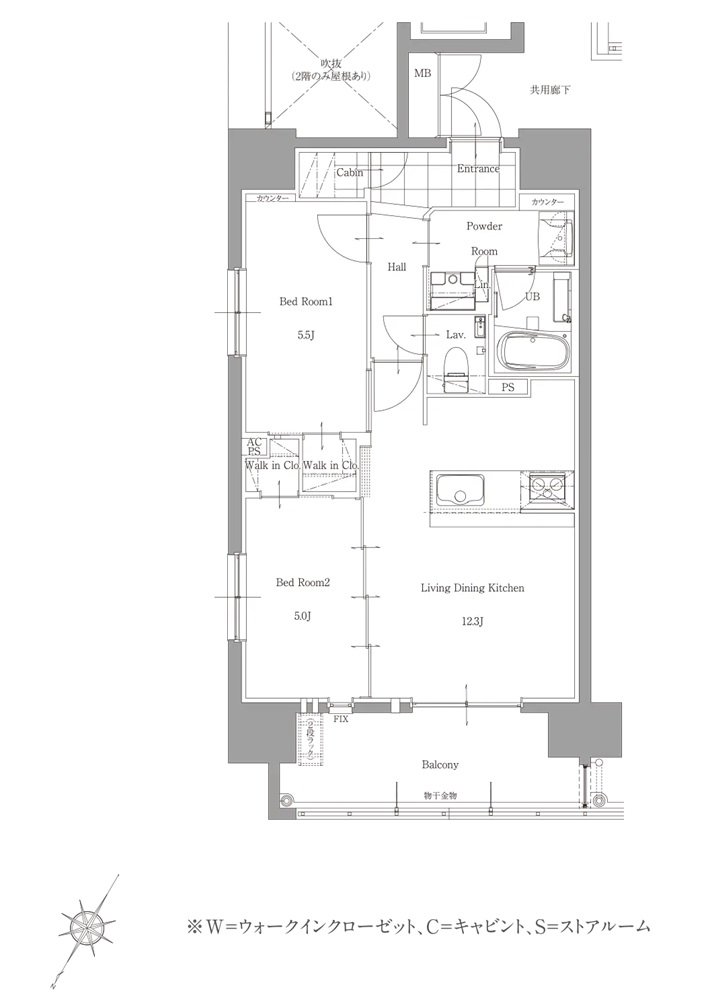
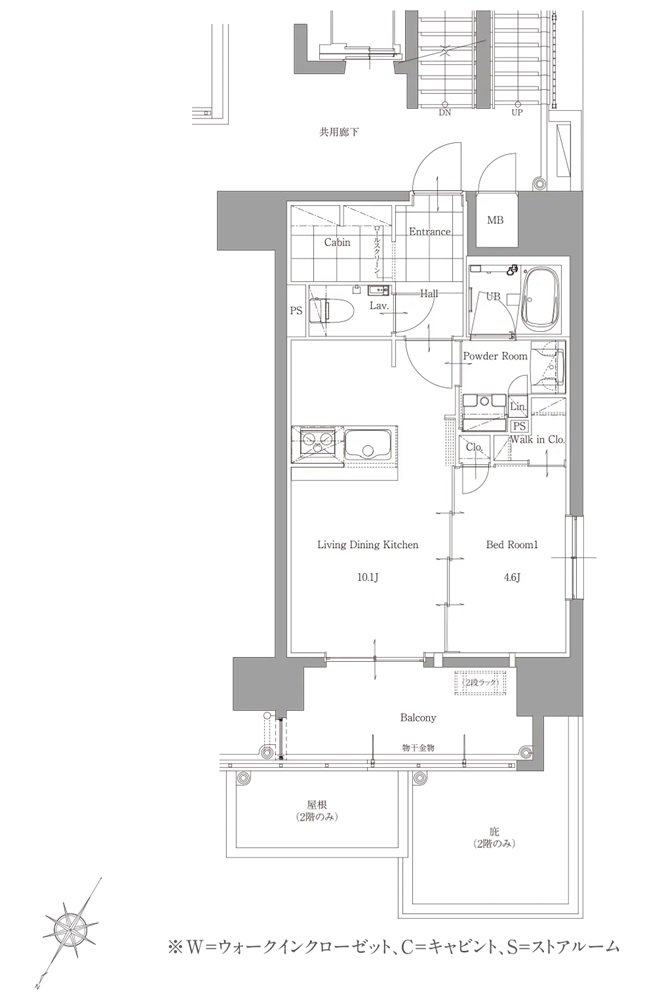
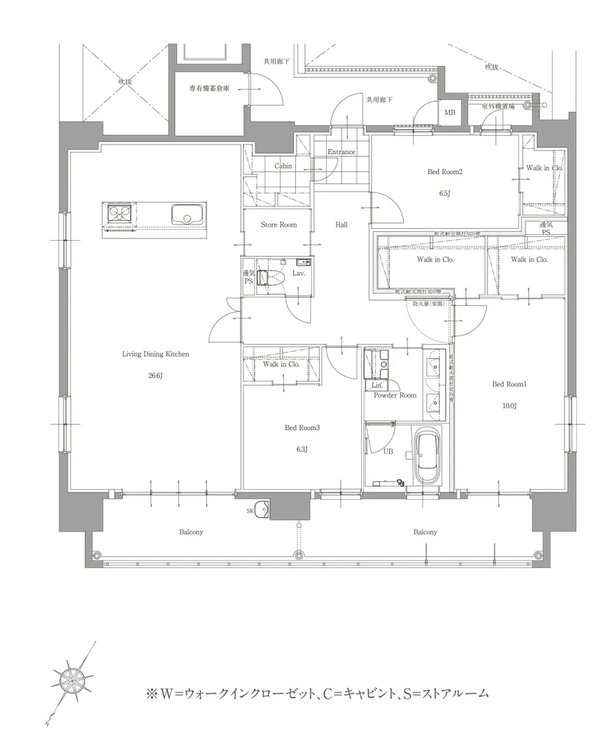
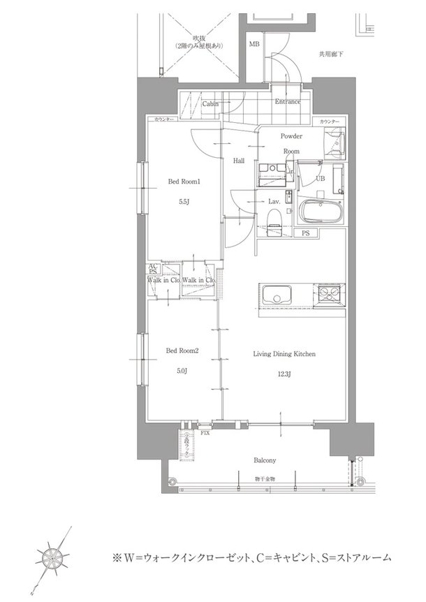
- 間取り
-
1LDK~3LDK
間取りを見る(6件)
- 販売スケジュール
-
先着順申込み受付中

