- 価格
-
4498万円~8288万円
月々の支払い額を見る
- 専有面積
-
56.83㎡~92.38㎡
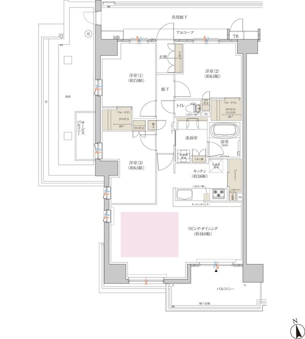
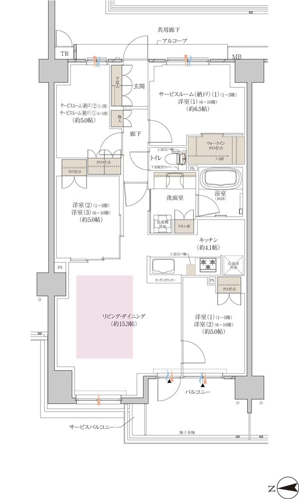
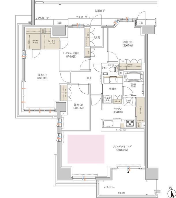
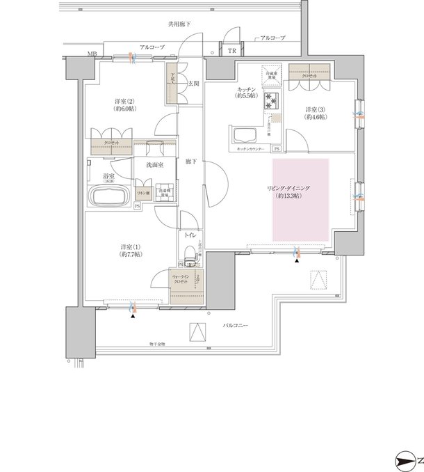
- 間取り
-
2LDK~4LDK
間取りを見る(15件)
- 販売スケジュール
-
先着順申込受付中

