- 価格
-
5250万円~1億6500万円
月々の支払い額を見る
- 専有面積
-
60.40㎡~128.06㎡
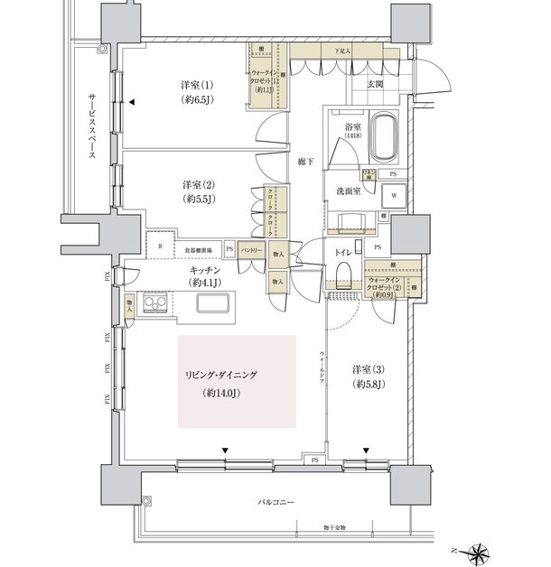
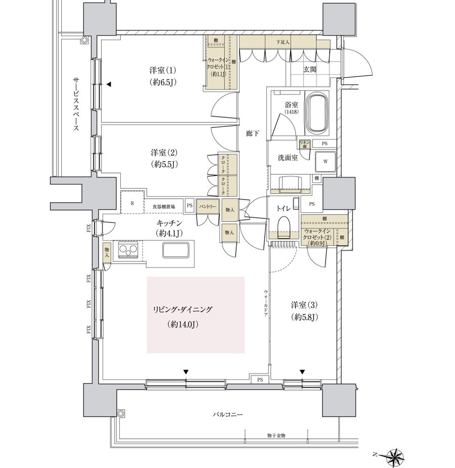
- 間取り
-
2LDK・3LDK・4LDK
間取りを見る(5件)
- 販売スケジュール
-
先着順申込み受付中

