- 価格
-
3899万円、5839万円
月々の支払い額を見る
- 専有面積
-
63.80㎡、73.60㎡
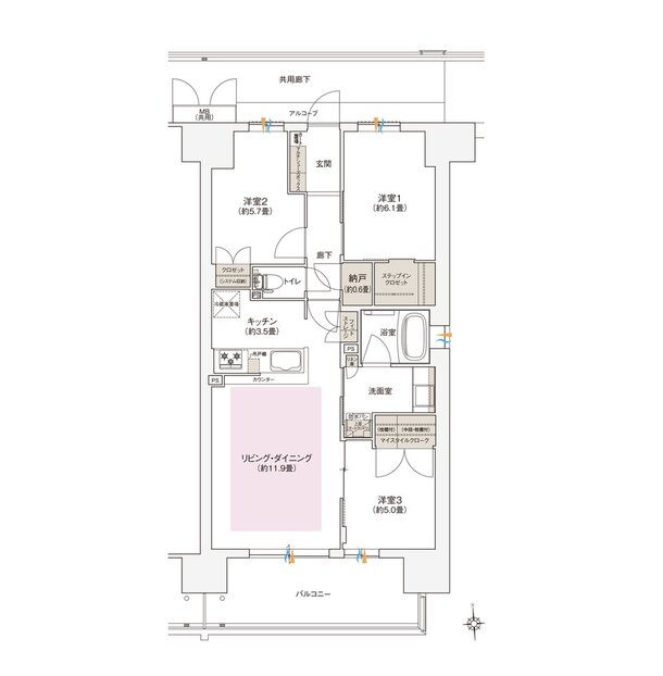
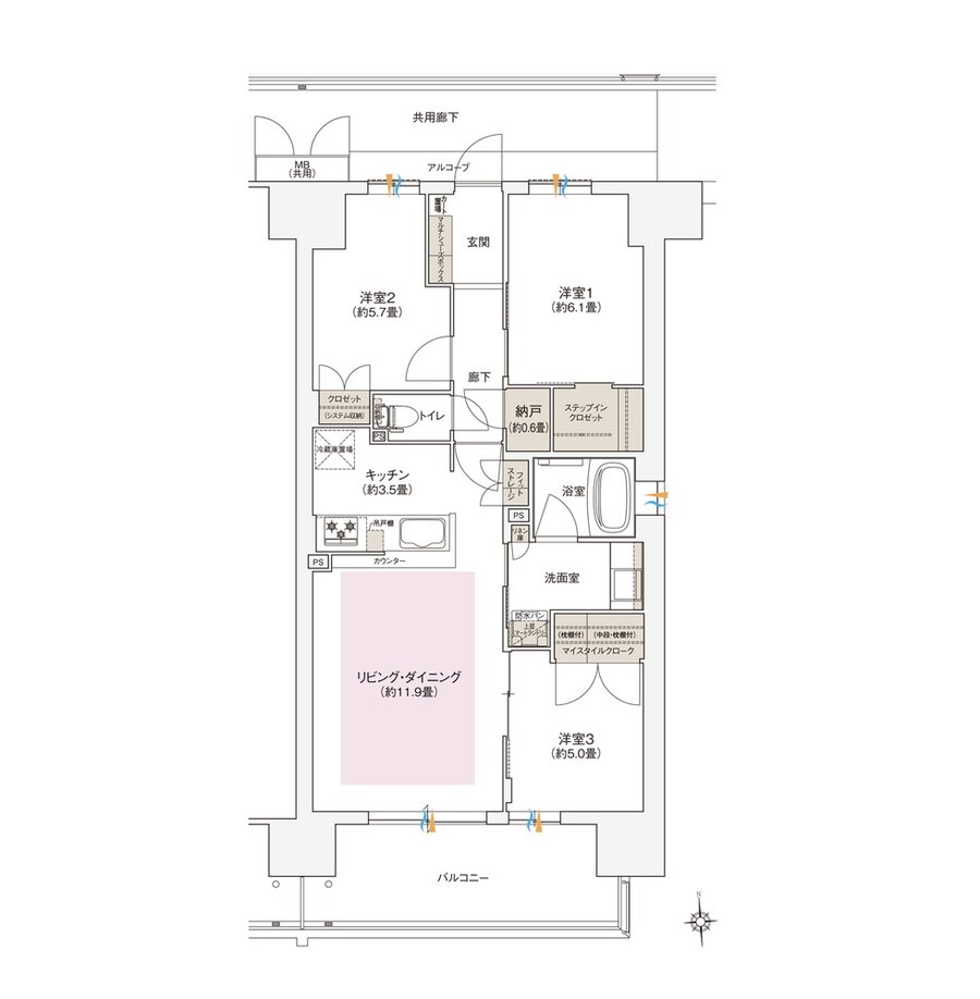
- 間取り
-
2LDK・3LDK
間取りを見る(2件)
- 販売スケジュール
-
登録申込受付期間/2025年12月13日(土) 登録申込受付時間/10:00~正午 登録申込受付・抽選場所/ローレルサロンザ・ランドマークス 抽選日時/2025年12月13日(土)13:00

