- 価格
-
3060万円~3200万円
月々の支払い額を見る
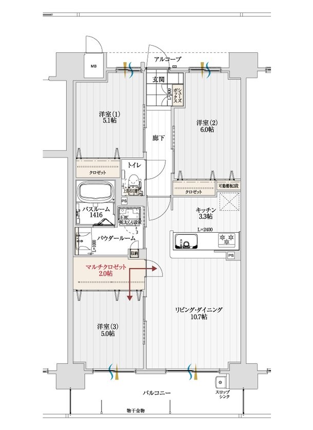
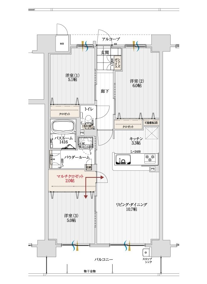
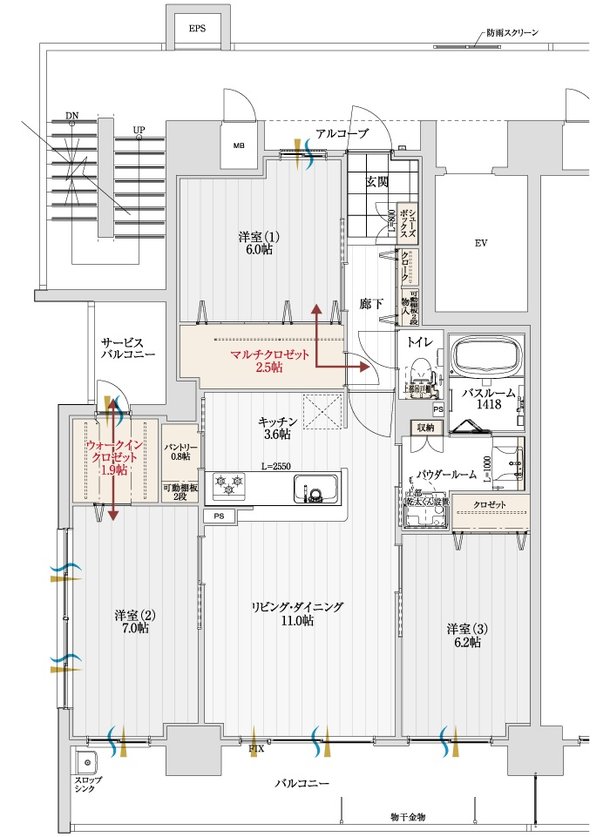
- 専有面積
-
68.86㎡
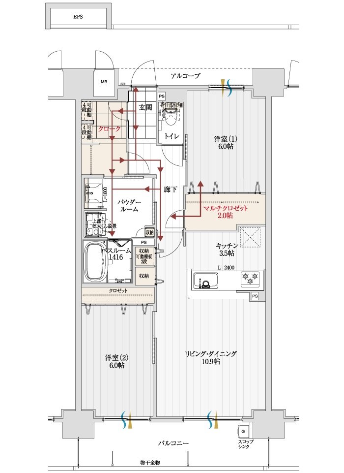
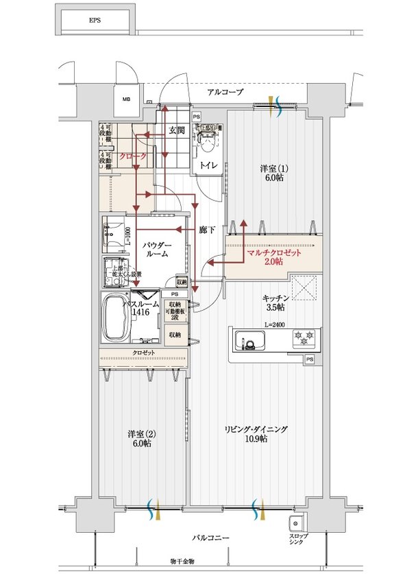
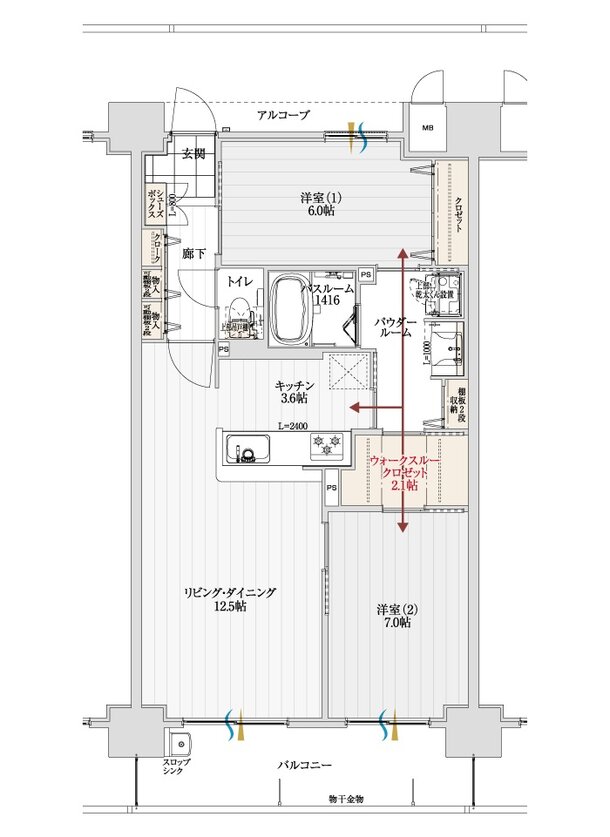
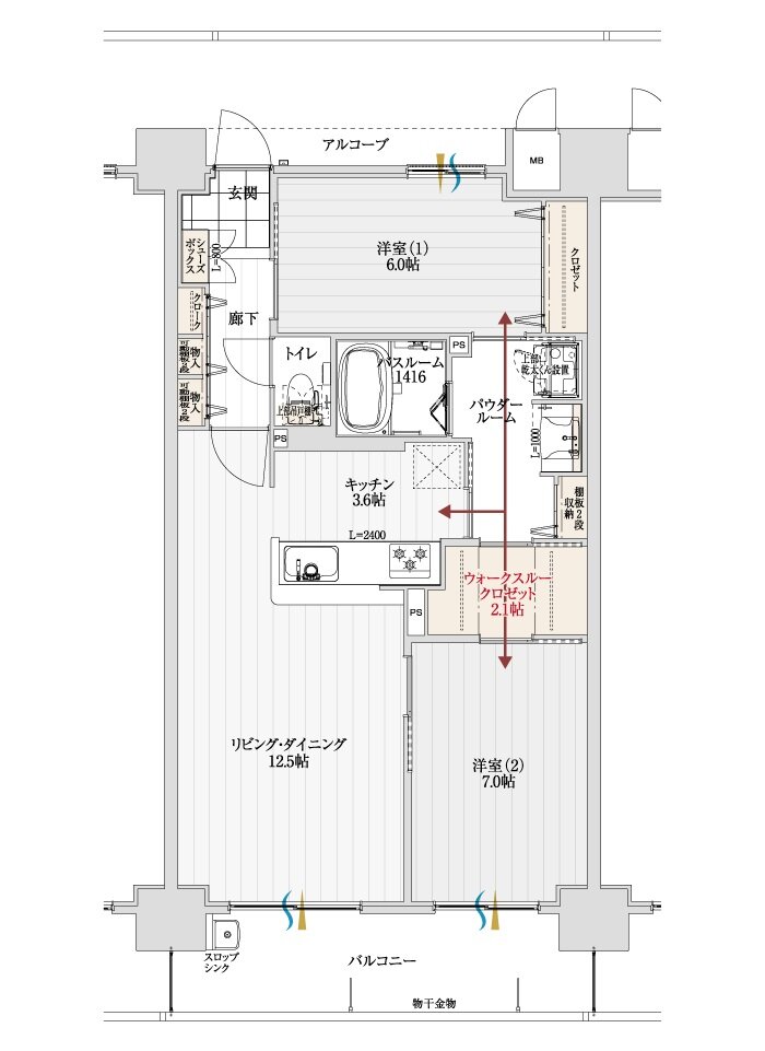
- 間取り
-
2LDK、3LDK
間取りを見る(9件)
- 販売スケジュール
-
先着順受付中 ※先着順につき、ご希望の住戸が売約済みの場合がございます。あらかじめご了承ください。

