レクシア田迎サウスブライト 間取り A type
タイプ

A type

間取り

3LDK+2WIC

専有面積

70.35㎡

バルコニー面積

17.84㎡

備考

[1]2面採光の明るい洋室
[2]パントリー・勝手口付きのキッチンは快適な調理空間
[3]生活空間を広くするアウトポール設計
[4]洋室3を開放すれば20帖超の広々空間に
[5]センターオープンサッシ採用

  • 可変式間仕切り
  • ウォークインクローゼット
  • 出入口が2か所以上あるキッチン
  • 浴室に窓
  • 3面バルコニー
  • 南向き
レクシア田迎サウスブライト 間取り B type
タイプ

B type

間取り

3LDK+WIC

専有面積

65.10㎡

バルコニー面積

11.16㎡

  • 可変式間仕切り
  • ウォークインクローゼット
  • 南向き
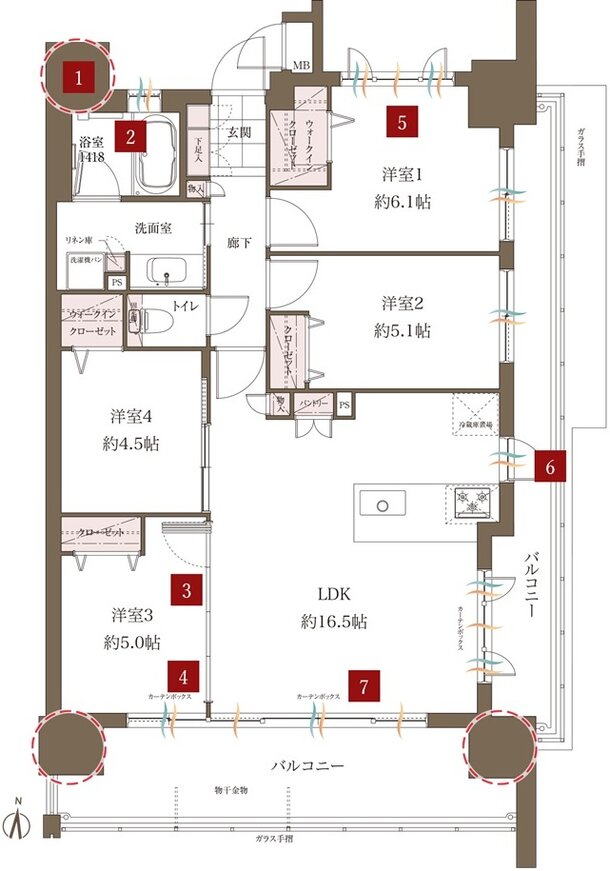
レクシア田迎サウスブライト 間取り E type
タイプ

E type

間取り

4LDK+2WIC

専有面積

80.29㎡

バルコニー面積

25.10㎡

備考

[1]生活空間を広くするアウトポール設計
[2]換気に優れた窓付きの浴室
[3]フレキシブルに空間を変更できる可動間仕切り
[4]洋室3を開放すれば21帖超の広々空間に
[5]2面採光の明るい主寝室
[6]パントリー・勝手口付きキッチン
[7]センターオープンサッシ採用

  • 可変式間仕切り
  • ウォークインクローゼット
  • 出入口が2か所以上あるキッチン
  • 浴室に窓
  • 2面バルコニー
  • 南向き

このページの一番上へ