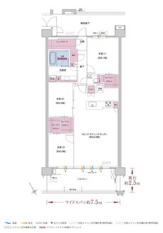
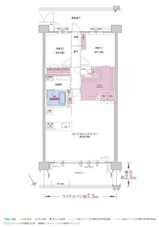
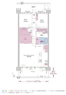
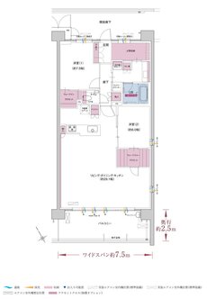
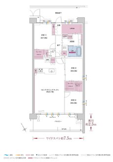
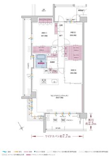
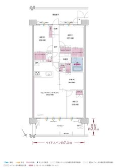
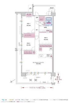
間取り
この物件の詳細情報に戻る2LDK掲載6件
3LDK掲載15件
※掲載の図面は計画段階のもので変更が生じる場合がございます。
※バルコニーの奥行は、壁の中心から手すり壁の中心までの寸法であり、実際に使用できる寸法とは異なります。
※バルコニーの形状は階によって異なりますので、詳しくはプラン集をご確認ください。
※無償オプションには期限がございます。詳しくは係員にお尋ねください。
関連する他の物件も見てみる
特徴
- 子どもと暮らす(12)
- 対面キッチン(11)
- モデルルーム公開中(11)
- I型キッチン(11)
- 複数沿線利用可能(11)
- 食器洗い乾燥機(食洗機)(11)
- 平置き駐車場(11)
- ウォークインクローゼット(10)
- 浴室暖房換気乾燥機(10)
- 宅配ボックス(9)
- 複層ガラス(ペアガラス)(9)
- 一人暮らし・二人暮らし向け(9)
- 駐車場100%以上(9)
- 可変式間仕切り(9)
- 全戸南向き(7)
- 販売前・販売予定(7)
- ZEHマンション(6)
- 2面バルコニー(6)
- エコマンション(5)
- ハンズフリーキー(5)
- 24時間ゴミ出し可能(5)
- 浴室に窓(4)
- 出入口が2か所以上あるキッチン(4)
- シューズインクローゼット(4)
- 広いバルコニー(4)
- スロップシンク(2)
- L字バルコニー(2)
- 南東向き(2)
- アルコーブ(1)
- 南西向き(1)
- ワイドスパン(1)
- オープンキッチン(1)
- アイランドキッチン(1)
- 和室付き(1)
地域
間取り
価格帯
不動産会社
駅
沿線

