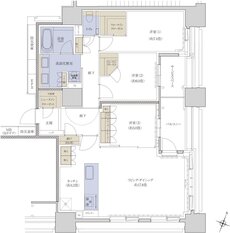
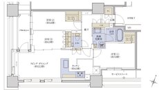
間取り
この物件の詳細情報に戻る2LDK掲載2件
WIC:ウォークインクローゼット
SIC:シューズインクローゼット
N:納戸
※掲載の間取りは計画段階のもので今後変更される場合がございます。
関連する他の物件も見てみる
特徴
- 子どもと暮らす(71)
- 対面キッチン(67)
- I型キッチン(67)
- ウォークインクローゼット(58)
- 一人暮らし・二人暮らし向け(54)
- 複数沿線利用可能(48)
- 可変式間仕切り(41)
- 駅近(駅徒歩5分以内・駅直結)(38)
- 販売前・販売予定(35)
- 宅配ボックス(34)
- ZEHマンション(32)
- 玄関からリビングが見えない間取り(31)
- シューズインクローゼット(30)
- 防災設備(23)
- 広いリビング(21)
- 浴室に窓(18)
- 東向き(15)
- 南東向き(15)
- ディスポーザー(13)
- L型キッチン(13)
- アイランドキッチン(11)
- 内廊下(6)
- コンシェルジュサービス(6)
地域
間取り
不動産会社
駅
沿線

