- 価格
-
6218万円~3億4288万円
月々の支払い額を見る
- 専有面積
-
40.57㎡~118.15㎡
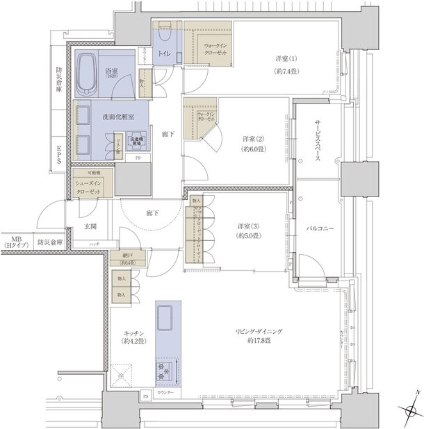
- 間取り
-
1LDK ~ 4LDK
間取りを見る(7件)
- 販売スケジュール
-
先着順販売中

