プレミスト立川 間取り B2 type
タイプ

B2 type

間取り

3LDK+WIC+SIC

専有面積

71.43㎡

バルコニー面積

9.65㎡

備考

ルーフバルコニー面積:17.87㎡

  • 玄関からリビングが見えない間取り
  • 可変式間仕切り
  • ウォークインクローゼット
  • シューズインクローゼット
  • ルーフバルコニー
  • 東向き
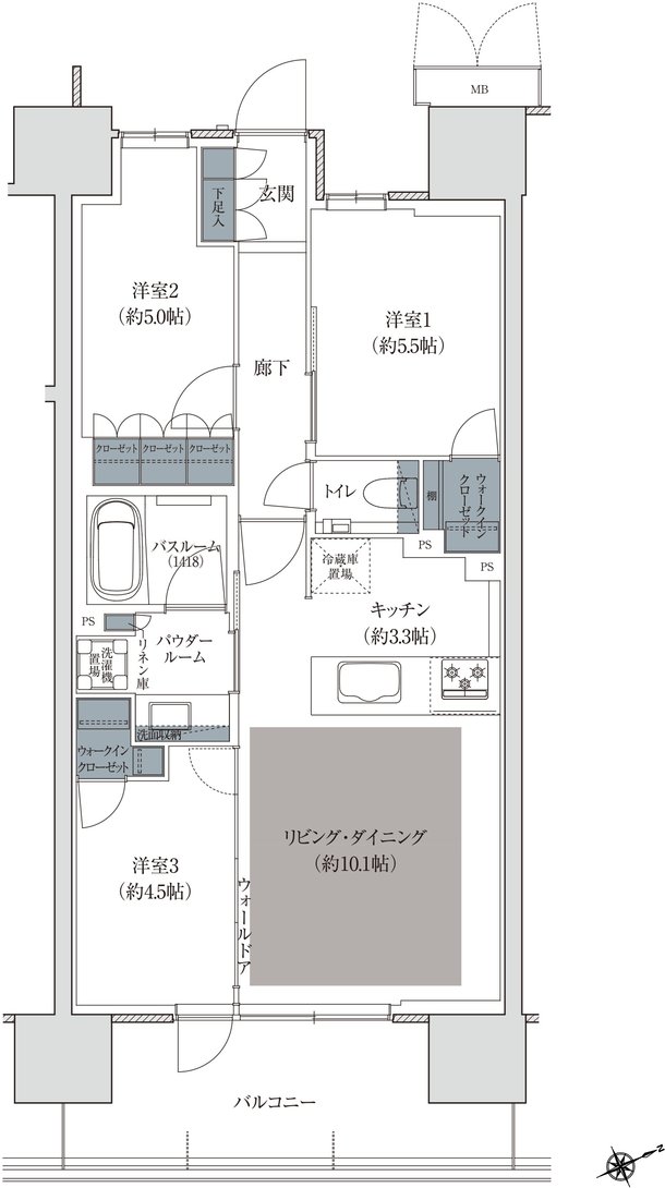
プレミスト立川 間取り H1 type
タイプ

H1 type

間取り

3LDK+WIC

専有面積

73.94㎡

バルコニー面積

11.84㎡

  • 玄関からリビングが見えない間取り
  • 可変式間仕切り
  • ウォークインクローゼット
  • 東向き
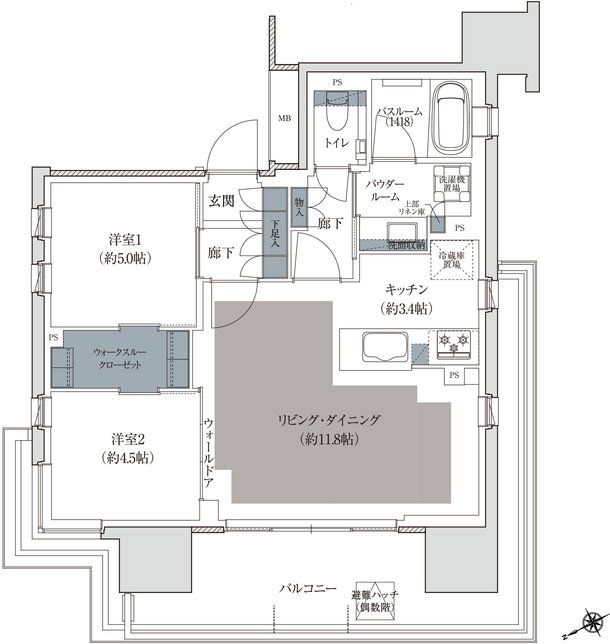
プレミスト立川 間取り B1 type
タイプ

B1 type

間取り

3LDK+N+WIC+SIC

専有面積

71.43㎡

バルコニー面積

9.65㎡

  • 玄関からリビングが見えない間取り
  • 可変式間仕切り
  • ウォークインクローゼット
  • シューズインクローゼット
  • 南東向き
プレミスト立川 間取り A type
タイプ

A type

間取り

2LDK+WTC

専有面積

58.39㎡

バルコニー面積

16.95㎡

  • 可変式間仕切り
  • ウォークインクローゼット
  • 出入口が2か所以上あるキッチン
  • 浴室に窓
  • L字バルコニー
  • 西向き

このページの一番上へ