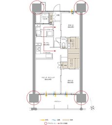
間取り
この物件の詳細情報に戻るWIC:ウォークインクローゼット WTC:ウォークスルークローゼット DEN:多目的スペース
※掲載の間取り図面・設備仕様は開発段階のもので、設計・施工上の都合により変更する場合があります。
※方位記号は若干誤差があります。正確な方位については設計図書でご確認ください。
関連する他の物件も見てみる
特徴
- 平置き駐車場(10)
- 子どもと暮らす(10)
- ウォークインクローゼット(9)
- ZEHマンション(9)
- I型キッチン(9)
- 対面キッチン(9)
- 防災設備(8)
- 複層ガラス(ペアガラス)(7)
- 一人暮らし・二人暮らし向け(7)
- ハンズフリーキー(6)
- モデルルーム公開中(6)
- 駐車場100%以上(6)
- 南向き(6)
- 食器洗い乾燥機(食洗機)(6)
- 浴室に窓(5)
- 浴室暖房換気乾燥機(5)
- 2面バルコニー(4)
- 宅配ボックス(4)
- 二重床/二重天井(4)
- 電気自動車対応(4)
- 即入居可能(3)
- 可変式間仕切り(3)
- 出入口が2か所以上あるキッチン(2)
- L型キッチン(1)
地域
間取り
価格帯
不動産会社
駅
沿線

