- 価格
-
3598万円~4258万円
月々の支払い額を見る
- 専有面積
-
71.68㎡~79.13㎡
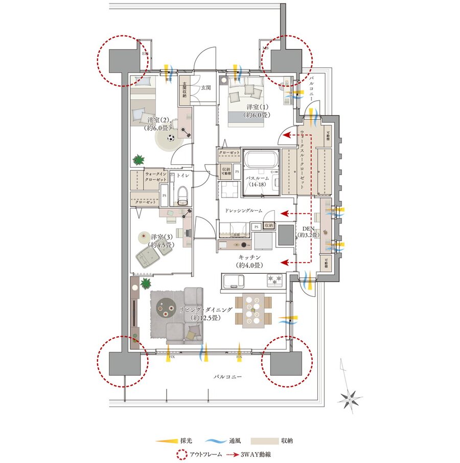
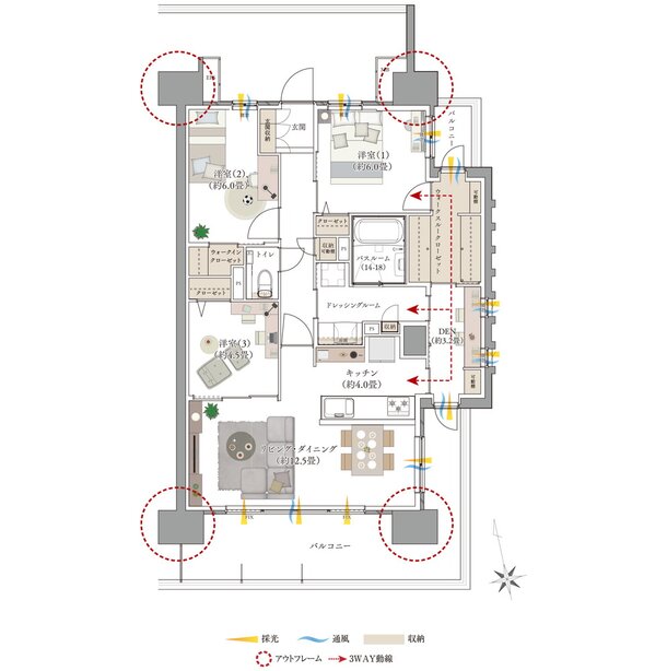
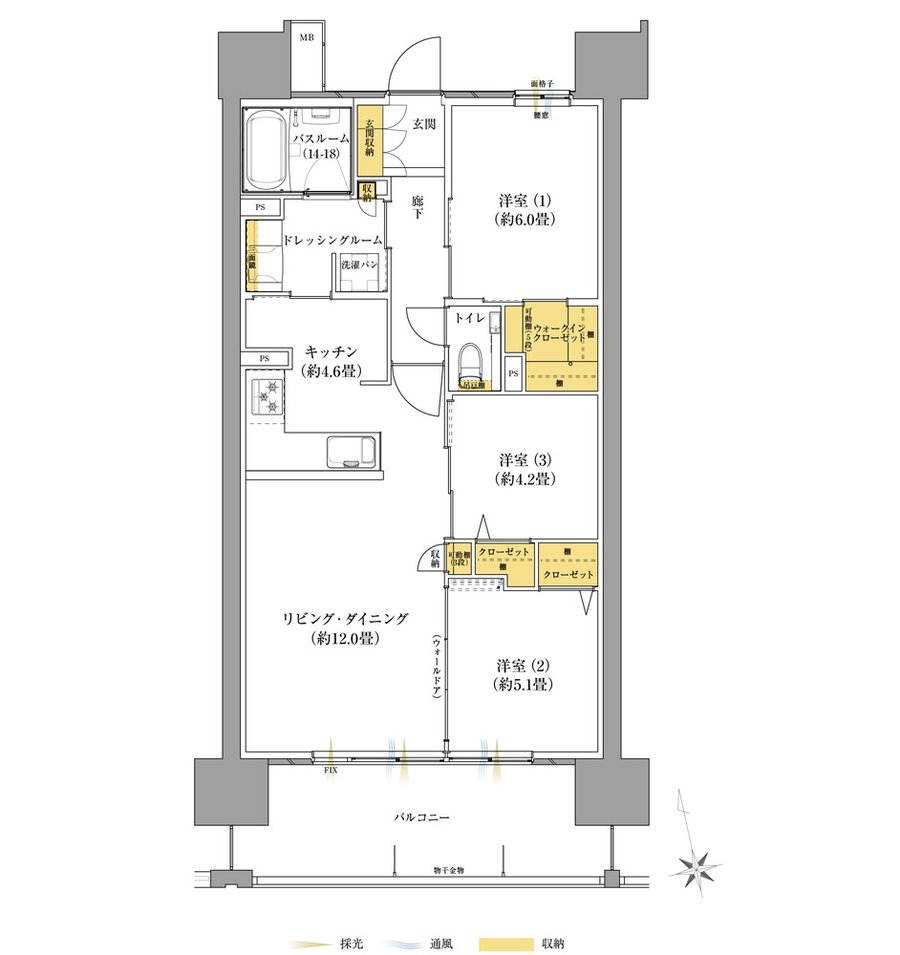
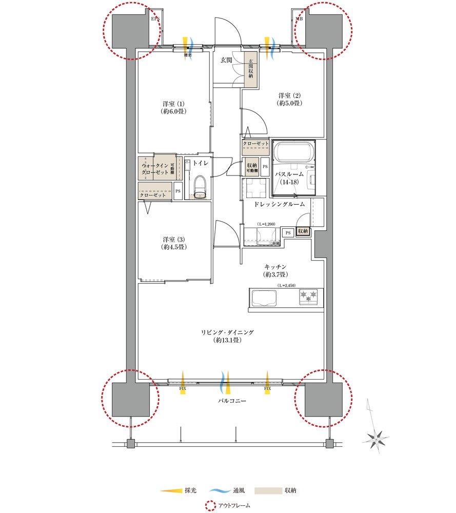
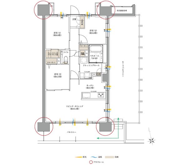
- 間取り
-
2LDK・3LDK
間取りを見る(5件)
- 販売スケジュール
-
先着順申込み受付中 受付場所/「サーパス伏石中央公園南」マンションギャラリー

