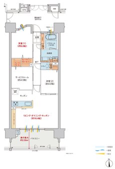
間取り
この物件の詳細情報に戻る2LDK掲載8件
3LDK掲載9件
※WICはウォークインクローゼット、FCはファミリークローク、SCはシューズクロークの略です。
関連する他の物件も見てみる
特徴
- 子どもと暮らす(38)
- 対面キッチン(37)
- ウォークインクローゼット(36)
- I型キッチン(36)
- スロップシンク(33)
- モデルルーム公開中(32)
- 浴室暖房換気乾燥機(30)
- 一人暮らし・二人暮らし向け(30)
- 食器洗い乾燥機(食洗機)(29)
- 平置き駐車場(27)
- エコマンション(27)
- 複層ガラス(ペアガラス)(27)
- 宅配ボックス(25)
- 出入口が2か所以上あるキッチン(23)
- 2面バルコニー(23)
- 広いバルコニー(22)
- 浴室に窓(22)
- ペット可(21)
- ハンズフリーキー(20)
- 南向き(18)
- 全戸南向き(18)
- ペット共用施設(16)
- 24時間ゴミ出し可能(16)
- 床暖房(16)
- ポーチ(13)
- 南向き中心(13)
- 玄関からリビングが見えない間取り(13)
- 遮音フローリング(10)
- ZEHマンション(10)
- ラウンジ(9)
- タワーマンション・高層マンション(7)
- 大規模マンション(7)
- カーシェア(3)
地域
間取り
価格帯
不動産会社

