ロイヤルガーデン中吉野ザ・グランの間取り一覧

お気に入りに
追加する
お気に入りに
追加済み

2LDK掲載1

3LDK掲載3

WIC:ウォークインクローゼット、FC:ファミリークローゼット、SIC:シューズインクローク、P:パントリー
※間取りは計画中の図面を基に描き起こしたもので実際とは多少異なる場合があります。
※メニュープランの申し込みには期限があります。詳しくは、お問い合わせください。

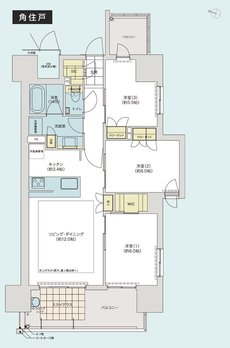
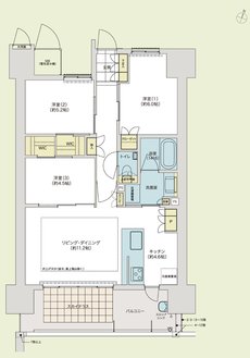
ロイヤルガーデン中吉野ザ・グラン 間取り N65-B TYPE
タイプ

N65-B TYPE

間取り

2LDK+2WIC+FC+SIC

専有面積

65.23㎡

バルコニー面積

-

価格

3180万円

備考

バルコニー面積:11.70㎡~12.59㎡
※バルコニー面積にスカイテラス面積含む

  • ウォークインクローゼット
  • シューズインクローゼット
  • スロップシンク
  • テラス
  • 西向き
  • フラットフロア
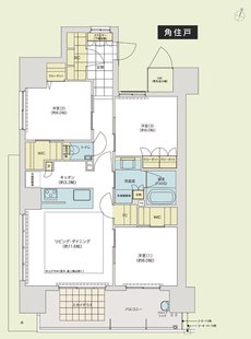
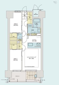
ロイヤルガーデン中吉野ザ・グラン 間取り N78-A TYPE
タイプ

N78-A TYPE

間取り

3LDK+3WIC+FC+SIC

専有面積

78.58㎡

バルコニー面積

-

価格

3950万円

備考

バルコニー面積:13.57㎡・13.96㎡
※スカイテラス面積含む

  • ウォークインクローゼット
  • シューズインクローゼット
  • 2面バルコニー
  • スロップシンク
  • テラス
  • 西向き
  • フラットフロア
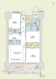
ロイヤルガーデン中吉野ザ・グラン 間取り S81-D TYPE
タイプ

S81-D TYPE

間取り

3LDK+2WIC+FC+SIC+P

専有面積

81.00㎡

バルコニー面積

-

価格

4290万円

備考

バルコニー面積:13.64㎡・14.13㎡
※バルコニー面積にスカイテラス面積含む

  • 玄関からリビングが見えない間取り
  • ウォークインクローゼット
  • シューズインクローゼット
  • スロップシンク
  • テラス
  • 南向き
  • フラットフロア
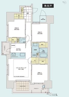
ロイヤルガーデン中吉野ザ・グラン 間取り S65-E TYPE
タイプ

S65-E TYPE

間取り

3LDK+2WIC+SIC

専有面積

65.73㎡

バルコニー面積

-

価格

3640万円

備考

バルコニー面積:12.80㎡・13.30㎡
※スカイテラス面積含む

  • ウォークインクローゼット
  • シューズインクローゼット
  • スロップシンク
  • テラス
  • 南向き
  • フラットフロア

このページの一番上へ