- 価格
-
7998万円~9138万円
月々の支払い額を見る
- 専有面積
-
67.08㎡~70.97㎡
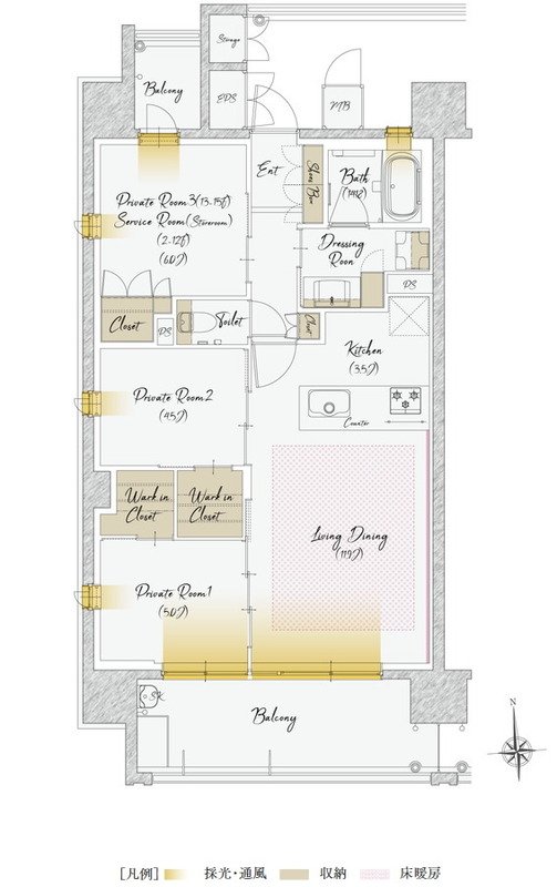
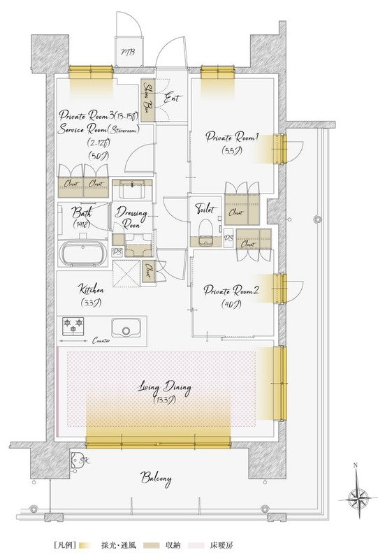
- 間取り
-
2LDK+S
間取りを見る(4件)
- 販売スケジュール
-
先着順申込受付中

