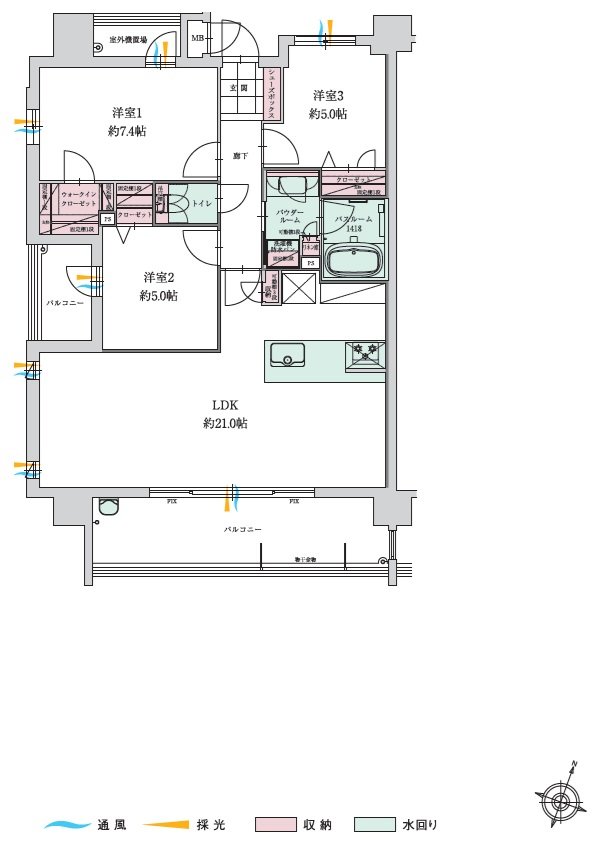
グランフォーレ姪浜駅南レジデンス 間取り Aタイプ
タイプ

Aタイプ

間取り

3LDK+WIC

専有面積

80.79㎡

バルコニー面積

16.12㎡

備考

室外機置場面積:2.03㎡

  • ウォークインクローゼット
  • 2面バルコニー
  • スロップシンク
  • 南東向き
グランフォーレ姪浜駅南レジデンス 間取り Dタイプ MENU PLAN-2
タイプ

Dタイプ MENU PLAN-2

間取り

3LDK+SC

専有面積

72.32㎡

バルコニー面積

13.68㎡

  • スロップシンク
  • 南東向き
グランフォーレ姪浜駅南レジデンス 間取り Eタイプ
タイプ

Eタイプ

間取り

4LDK+防災備蓄倉庫

専有面積

85.32㎡

バルコニー面積

16.23㎡

備考

室外機置場面積:1.73㎡
防災備蓄倉庫面積:1.78㎡

  • 玄関からリビングが見えない間取り
  • 可変式間仕切り
  • 出入口が2か所以上あるキッチン
  • 2面バルコニー
  • スロップシンク
  • 南東向き

このページの一番上へ