- 価格
-
価格未定(予定)
- 専有面積
-
53.62㎡~74.13㎡
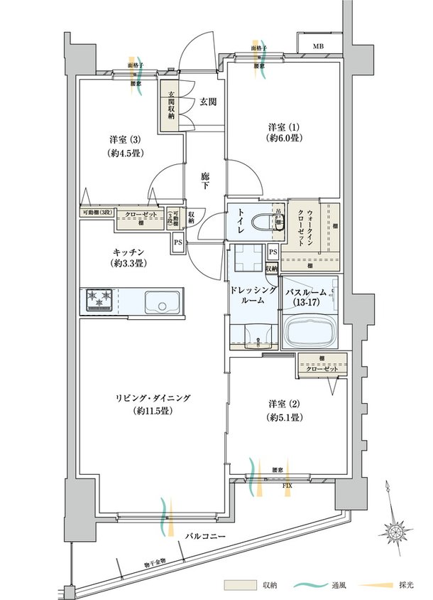
- 間取り
-
2LDK・3LDK
間取りを見る(11件)
- 販売スケジュール
-
2026年1月下旬販売予定

