プラウドシティ所沢 間取り B2 type
タイプ

B2 type

間取り

3LDK+WIC

専有面積

68.84㎡

バルコニー面積

12.10㎡

  • アルコーブ
  • 可変式間仕切り
  • ウォークインクローゼット
  • 西向き
プラウドシティ所沢 間取り B4 type
タイプ

B4 type

間取り

3LDK+FIC

専有面積

71.87㎡

バルコニー面積

12.10㎡

  • アルコーブ
  • 可変式間仕切り
  • ウォークインクローゼット
  • 西向き
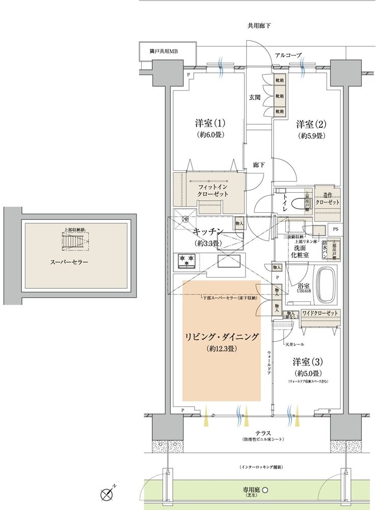
プラウドシティ所沢 間取り B4t type
タイプ

B4t type

間取り

3LDK+FIC+SC

専有面積

72.49㎡

バルコニー面積

-

備考

テラス面積:12.10㎡
専用庭面積:6.05㎡
スーパーセラ一面積:10.59㎡(内法7.48㎡)

  • アルコーブ
  • 可変式間仕切り
  • ウォークインクローゼット
  • テラス
  • 専用庭
  • 西向き
プラウドシティ所沢 間取り D1 type
タイプ

D1 type

間取り

3LDK+FIC

専有面積

71.87㎡

バルコニー面積

12.10㎡

  • アルコーブ
  • 可変式間仕切り
  • ウォークインクローゼット
  • 南東向き
プラウドシティ所沢 間取り D1t type
タイプ

D1t type

間取り

3LDK+FIC+SC

専有面積

72.48㎡

バルコニー面積

-

備考

テラス面積:12.10㎡
専用庭面積:6.05㎡
スーパーセラー面積:7.73㎡(内法4.91㎡)

  • アルコーブ
  • 可変式間仕切り
  • ウォークインクローゼット
  • テラス
  • 専用庭
  • 南東向き
プラウドシティ所沢 間取り D2 type
タイプ

D2 type

間取り

3LDK+FIC

専有面積

74.89㎡

バルコニー面積

12.40㎡

  • アルコーブ
  • 可変式間仕切り
  • ウォークインクローゼット
  • 南東向き
プラウドシティ所沢 間取り D2t type
タイプ

D2t type

間取り

3LDK+FIC+SC

専有面積

74.89㎡

バルコニー面積

-

備考

テラス面積:12.40㎡
専用庭面積:6.20㎡
スーパーセラー面積:11.34㎡(内法8.02㎡)

  • アルコーブ
  • 可変式間仕切り
  • ウォークインクローゼット
  • テラス
  • 専用庭
  • 南東向き
プラウドシティ所沢 間取り D3 type
タイプ

D3 type

間取り

3LDK+FIC

専有面積

71.87㎡

バルコニー面積

12.10㎡

  • アルコーブ
  • 可変式間仕切り
  • ウォークインクローゼット
  • 南東向き
プラウドシティ所沢 間取り D3t type
タイプ

D3t type

間取り

3LDK+FIC+SC

専有面積

71.87㎡

バルコニー面積

-

備考

テラス面積:12.10㎡
専用庭面積:6.05㎡
スーパーセラー面積:10.59㎡(内法7.38㎡)

  • アルコーブ
  • 可変式間仕切り
  • ウォークインクローゼット
  • テラス
  • 専用庭
  • 南東向き
プラウドシティ所沢 間取り D4 type
タイプ

D4 type

間取り

3LDK+N+WIC

専有面積

80.52㎡

バルコニー面積

18.15㎡

  • アルコーブ
  • 可変式間仕切り
  • ウォークインクローゼット
  • 浴室に窓
  • 南東向き
プラウドシティ所沢 間取り D4t type
タイプ

D4t type

間取り

3LDK+N+WIC+SC

専有面積

80.52㎡

バルコニー面積

-

備考

テラス面積:18.15㎡
専用庭面積:8.80㎡
スーパーセラー面積:8.49㎡(内法5.66㎡)

  • アルコーブ
  • 可変式間仕切り
  • ウォークインクローゼット
  • 浴室に窓
  • テラス
  • 専用庭
  • 南東向き
プラウドシティ所沢 間取り D5 type
タイプ

D5 type

間取り

3LDK+N+WIC

専有面積

78.87㎡

バルコニー面積

18.15㎡

  • アルコーブ
  • 可変式間仕切り
  • ウォークインクローゼット
  • 東向き
プラウドシティ所沢 間取り D5t type
タイプ

D5t type

間取り

3LDK+N+WIC+SC

専有面積

78.87㎡

バルコニー面積

-

備考

テラス面積:20.81㎡
スーパーセラー面積:8.49㎡(内法5.66㎡)

  • アルコーブ
  • 可変式間仕切り
  • ウォークインクローゼット
  • テラス
  • 専用庭
  • 東向き
プラウドシティ所沢 間取り D7 type
タイプ

D7 type

間取り

3LDK+FIC

専有面積

71.87㎡

バルコニー面積

12.10㎡

  • アルコーブ
  • 可変式間仕切り
  • ウォークインクローゼット
  • 東向き
プラウドシティ所沢 間取り D8t type
タイプ

D8t type

間取り

3LDK+FIC+SC

専有面積

71.87㎡

バルコニー面積

-

備考

テラス面積:13.91㎡
スーパーセラー面積:10.59㎡(内法7.33㎡)

  • アルコーブ
  • 可変式間仕切り
  • ウォークインクローゼット
  • テラス
  • 専用庭
  • 東向き

このページの一番上へ