- 価格
-
価格未定(予定)
- 専有面積
-
56.22㎡~87.09㎡
- 間取り
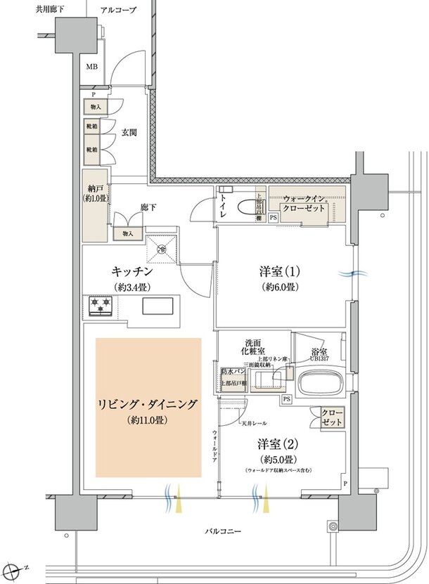
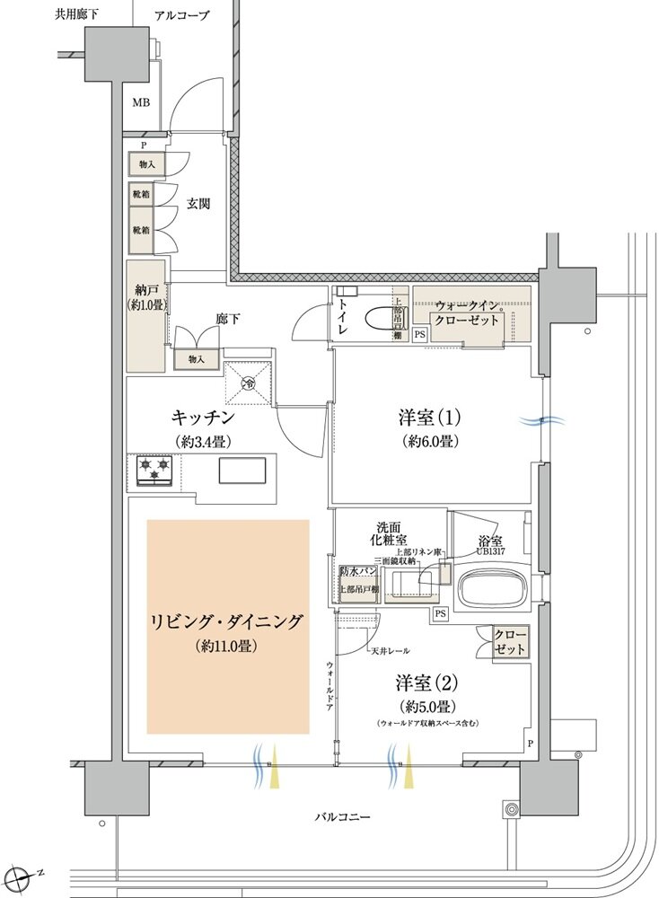
-
2LDK ・ 3LDK
間取りを見る(4件)
- 販売スケジュール
-
2026年3月下旬 販売開始予定

