- 価格
-
3980万円~6090万円
月々の支払い額を見る
- 専有面積
-
60.13㎡~86.17㎡
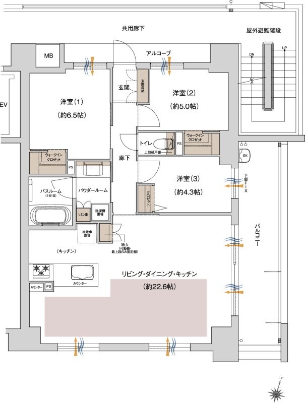
- 間取り
-
3LDK、4LDK
間取りを見る(6件)
- 販売スケジュール
-
先着順申込受付中

