ハイムスイート京都 太秦天神川の間取り一覧

お気に入りに
追加する
お気に入りに
追加済み

2LDK掲載2

3LDK掲載12

4LDK掲載6

S…サービスルーム SIC…シューズインクロゼット WIC…ウォークインクロゼット PS…パイプスペース MB…メーターボックス
※掲載の間取り図は、計画段階の図面を基に描き起こしたもので実際とは異なります。施工上やむを得ない変更が生じた場合は建物竣工時の状態を優先します。また、図面中の方位は若干の差異を生じる場合があります。
※バルコニー形状は、各階数により異なります。

関連する他の物件も見てみる

ハイムスイート京都 太秦天神川に関連する条件でマンションを探す
ハイムスイート京都 太秦天神川 間取り B11 TYPE
タイプ

B11 TYPE

間取り

2LDK+S+WIC

専有面積

68.51㎡

バルコニー面積

11.20㎡

備考

アルコーブ面積:3.23㎡

  • アルコーブ
  • 可変式間仕切り
  • ウォークインクローゼット
  • 広いバルコニー
  • 南向き
ハイムスイート京都 太秦天神川 間取り C6 TYPE
タイプ

C6 TYPE

間取り

2LDK+S+WIC/3LDK+WIC

専有面積

66.49㎡

バルコニー面積

11.60㎡

備考

アルコーブ面積:2.71㎡
※2LDK+S+WIC(1階)、3LDK+WIC(2・3階)

  • アルコーブ
  • 可変式間仕切り
  • ウォークインクローゼット
  • 広いバルコニー
  • 東向き
ハイムスイート京都 太秦天神川 間取り A12 TYPE
タイプ

A12 TYPE

間取り

3LDK+WIC

専有面積

65.45㎡

バルコニー面積

8.26㎡

備考

サービスバルコニー面積:1.12㎡
アルコーブ面積:1.95㎡

  • アルコーブ
  • 可変式間仕切り
  • ウォークインクローゼット
  • 広いバルコニー
  • 西向き
ハイムスイート京都 太秦天神川 間取り B10 TYPE
タイプ

B10 TYPE

間取り

3LDK+WIC

専有面積

68.05㎡

バルコニー面積

11.20㎡

備考

アルコーブ面積:3.58㎡

  • アルコーブ
  • 可変式間仕切り
  • ウォークインクローゼット
  • 広いバルコニー
  • 南向き
ハイムスイート京都 太秦天神川 間取り B13g TYPE
タイプ

B13g TYPE

間取り

3LDK+WIC+SIC

専有面積

66.81㎡

バルコニー面積

-

備考

テラス面積:12.37㎡
専用庭面積:13.00㎡
アルコーブ面積:4.25㎡

  • アルコーブ
  • 玄関からリビングが見えない間取り
  • 可変式間仕切り
  • ウォークインクローゼット
  • シューズインクローゼット
  • テラス
  • 専用庭
  • 南向き
ハイムスイート京都 太秦天神川 間取り B16 TYPE
タイプ

B16 TYPE

間取り

3LDK+WIC

専有面積

67.92㎡

バルコニー面積

11.20㎡

備考

アルコーブ面積:3.35㎡

  • アルコーブ
  • 可変式間仕切り
  • ウォークインクローゼット
  • 広いバルコニー
  • 南向き
ハイムスイート京都 太秦天神川 間取り A1 TYPE
タイプ

A1 TYPE

間取り

3LDK+N+FC+WIC

専有面積

73.78㎡

バルコニー面積

12.20㎡

備考

サービスバルコニー面積:1.91㎡
アルコーブ面積:1.60㎡

  • アルコーブ
  • 可変式間仕切り
  • ウォークインクローゼット
  • 広いバルコニー
  • 西向き
ハイムスイート京都 太秦天神川 間取り B2 TYPE
タイプ

B2 TYPE

間取り

3LDK+FC+WIC

専有面積

75.33㎡

バルコニー面積

12.20㎡

備考

アルコーブ面積:2.65㎡

  • アルコーブ
  • 可変式間仕切り
  • ウォークインクローゼット
  • 広いバルコニー
  • 南向き
ハイムスイート京都 太秦天神川 間取り B5 TYPE
タイプ

B5 TYPE

間取り

3LDK+WIC

専有面積

70.39㎡

バルコニー面積

11.40㎡

備考

アルコーブ面積:2.36㎡

  • アルコーブ
  • 可変式間仕切り
  • ウォークインクローゼット
  • 広いバルコニー
ハイムスイート京都 太秦天神川 間取り B6 TYPE
タイプ

B6 TYPE

間取り

3LDK+WIC

専有面積

70.39㎡

バルコニー面積

11.40㎡

備考

アルコーブ面積:2.67㎡

  • アルコーブ
  • 可変式間仕切り
  • ウォークインクローゼット
  • 広いバルコニー
  • 南向き
ハイムスイート京都 太秦天神川 間取り B9 TYPE
タイプ

B9 TYPE

間取り

3LDK+2WIC

専有面積

70.39㎡

バルコニー面積

11.40㎡

備考

アルコーブ面積:2.37㎡

  • アルコーブ
  • 可変式間仕切り
  • ウォークインクローゼット
  • 広いバルコニー
  • 南向き
ハイムスイート京都 太秦天神川 間取り B17 TYPE
タイプ

B17 TYPE

間取り

3LDK+2WIC

専有面積

70.39㎡

バルコニー面積

11.40㎡

備考

アルコーブ面積:2.26㎡

  • アルコーブ
  • 可変式間仕切り
  • ウォークインクローゼット
  • 広いバルコニー
  • 南向き
ハイムスイート京都 太秦天神川 間取り C3 TYPE
タイプ

C3 TYPE

間取り

3LDK+2WIC

専有面積

70.18㎡

バルコニー面積

12.10㎡

備考

アルコーブ面積:2.84㎡

  • アルコーブ
  • 可変式間仕切り
  • ウォークインクローゼット
  • 広いバルコニー
  • 東向き
ハイムスイート京都 太秦天神川 間取り B1g TYPE
タイプ

B1g TYPE

間取り

3LDK+S+WIC+SIC

専有面積

82.79㎡

バルコニー面積

-

備考

テラス面積:14.82㎡
専用平置駐車場面積:12.50㎡
サービスバルコニー面積:2.27㎡
アルコーブ面積:1.43㎡

  • アルコーブ
  • 玄関からリビングが見えない間取り
  • 可変式間仕切り
  • ウォークインクローゼット
  • シューズインクローゼット
  • 2面バルコニー
  • テラス
  • 南向き
ハイムスイート京都 太秦天神川 間取り C4 TYPE
タイプ

C4 TYPE

間取り

4LDK+WIC+可動間仕切り収納

専有面積

78.88㎡

バルコニー面積

13.60㎡

備考

アルコーブ面積:2.94㎡

  • アルコーブ
  • ウォークインクローゼット
  • 広いバルコニー
ハイムスイート京都 太秦天神川 間取り B1 TYPE
タイプ

B1 TYPE

間取り

3LDK+S+WIC+SIC/4LDK+WIC+SIC

専有面積

83.69㎡

バルコニー面積

12.30㎡

備考

サービスバルコニー面積:2.27㎡
アルコーブ面積:0.81㎡
※3LDK+S+WIC+SIC(2・3階)、4LDK+WIC+SIC(4・5階)

  • アルコーブ
  • 玄関からリビングが見えない間取り
  • 可変式間仕切り
  • ウォークインクローゼット
  • 広いバルコニー
  • 2面バルコニー
  • 南向き
ハイムスイート京都 太秦天神川 間取り B20 TYPE
タイプ

B20 TYPE

間取り

4LDK+N+WIC

専有面積

82.70㎡

バルコニー面積

12.00㎡

備考

サービスバルコニー面積:1.61㎡
アルコーブ面積:2.42㎡

  • アルコーブ
  • 玄関からリビングが見えない間取り
  • ウォークインクローゼット
  • 広いバルコニー
  • 2面バルコニー
  • 南向き
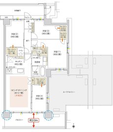
ハイムスイート京都 太秦天神川 間取り C5r TYPE
タイプ

C5r TYPE

間取り

4LDK+4WIC

専有面積

84.67㎡

バルコニー面積

17.30㎡

備考

ルーフバルコニー面積:32.36㎡
アルコーブ面積:2.62㎡

  • アルコーブ
  • 可変式間仕切り
  • ウォークインクローゼット
  • 2面バルコニー
  • ルーフバルコニー
  • 東向き
ハイムスイート京都 太秦天神川 間取り C7 TYPE
タイプ

C7 TYPE

間取り

4LDK+2WIC/2LDK+2S[納戸]+2WIC

専有面積

82.34㎡

バルコニー面積

12.60㎡

備考

サービスバルコニー面積:2.20㎡
アルコーブ面積:1.94㎡
※4LDK+2WIC(2〜3階)、2LDK+2S[納戸]+2WIC(1階)

  • アルコーブ
  • 玄関からリビングが見えない間取り
  • 可変式間仕切り
  • ウォークインクローゼット
  • 広いバルコニー
  • 2面バルコニー
  • 東向き
ハイムスイート京都 太秦天神川 間取り B18r TYPE
タイプ

B18r TYPE

間取り

4LDK+5WIC

専有面積

86.59㎡

バルコニー面積

16.20㎡

備考

ルーフバルコニー面積:53.39㎡
アルコーブ面積:2.20㎡

  • アルコーブ
  • 可変式間仕切り
  • ウォークインクローゼット
  • 広いバルコニー
  • 2面バルコニー
  • ルーフバルコニー
  • 南向き

このページの一番上へ