- 価格
-
4298万円、7798万円
月々の支払い額を見る
- 専有面積
-
38.09㎡、57.54㎡
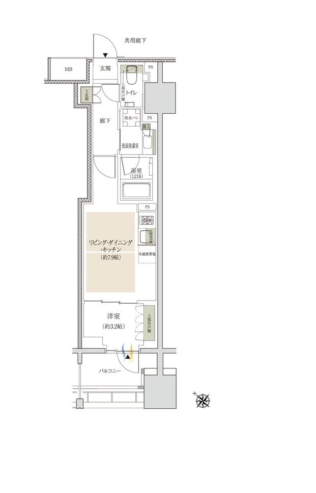
- 間取り
-
1LDK・2LDK
間取りを見る(4件)
- 販売スケジュール
-
先着順申込み受付中

