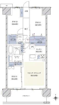
間取り
この物件の詳細情報に戻るOD:オープンエアデッキ BW:ビッグウォークインクロゼット W:ウォークインクロゼット
※掲載の間取りは、計画段階の図面を基に簡略化して描き起こしたものです。施工上の理由等のため、今後変更になる場合がございます。
※リビング・ダイニングの畳数表記については、リビング・ダイニングの扉より内側の面積からキッチンの面積を差し引いたもので算出しております。
関連する他の物件も見てみる
特徴
- I型キッチン(39)
- 対面キッチン(39)
- 子どもと暮らす(38)
- ウォークインクローゼット(38)
- 床暖房(36)
- 可変式間仕切り(36)
- 浴室暖房換気乾燥機(33)
- 食器洗い乾燥機(食洗機)(33)
- 複数沿線利用可能(30)
- モデルルーム公開中(29)
- 複層ガラス(ペアガラス)(29)
- シューズインクローゼット(28)
- エコマンション(26)
- ペット可(25)
- 販売前・販売予定(24)
- 大規模マンション(23)
- 南向き(20)
- アウトフレーム工法(19)
- 二重床/二重天井(16)
- ペット共用施設(16)
- 出入口が2か所以上あるキッチン(13)
- フラット35(11)
- 全戸南向き(8)
- L字バルコニー(6)
- 3面バルコニー(2)
- リバーサイド・川沿い・水辺(2)
地域
間取り
価格帯
不動産会社
駅
沿線

