仙台 THE GRAND SKYの間取り一覧

お気に入りに
追加する
お気に入りに
追加済み

〜1LDK(1R・1K・1DK含む)掲載5

2LDK掲載4

3LDK掲載14

4LDK掲載3

※掲載の間取図は計画段階の図面を基に描き起こしたものであり、今後変更になる可能性があります。

関連する他の物件も見てみる

仙台 THE GRAND SKYに関連する条件でマンションを探す
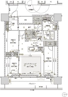
仙台 THE GRAND SKY 間取り Eタイプ
タイプ

Eタイプ

間取り

1LDK

専有面積

31.86㎡

バルコニー面積

-

備考

バルコニー面積:9.72㎡(2~5階)、10.74㎡(6~10階)

  • 西向き
仙台 THE GRAND SKY 間取り Fタイプ
タイプ

Fタイプ

間取り

1LDK

専有面積

31.08㎡

バルコニー面積

10.69㎡

  • 玄関からリビングが見えない間取り
  • 東向き
仙台 THE GRAND SKY 間取り G1タイプ
タイプ

G1タイプ

間取り

1LDK+WIC

専有面積

39.01㎡

バルコニー面積

7.74㎡

  • 可変式間仕切り
  • ウォークインクローゼット
  • 東向き
仙台 THE GRAND SKY 間取り H1タイプ
タイプ

H1タイプ

間取り

1LDK+GC+SIC

専有面積

33.21㎡

バルコニー面積

6.84㎡

  • シューズインクローゼット
  • 東向き
仙台 THE GRAND SKY 間取り Iタイプ
タイプ

Iタイプ

間取り

1LDK+WIC

専有面積

42.65㎡

バルコニー面積

7.74㎡

備考

サービスバルコニー面積:10.92㎡

  • 可変式間仕切り
  • ウォークインクローゼット
  • 2面バルコニー
  • 東向き
仙台 THE GRAND SKY 間取り Bタイプ
タイプ

Bタイプ

間取り

2LDK+S+WIC

専有面積

65.39㎡

バルコニー面積

13.5㎡

  • ウォークインクローゼット
  • 南向き
仙台 THE GRAND SKY 間取り Cタイプ
タイプ

Cタイプ

間取り

2LDK+SIC

専有面積

56.25㎡

バルコニー面積

10.98㎡

  • 玄関からリビングが見えない間取り
  • シューズインクローゼット
  • 南向き
仙台 THE GRAND SKY 間取り Mタイプ
タイプ

Mタイプ

間取り

2LDK+SIC

専有面積

66.79㎡

バルコニー面積

-

備考

バルコニー面積:13.02㎡(3階)、12.18㎡(4~21階)

  • 玄関からリビングが見えない間取り
  • シューズインクローゼット
  • 浴室に窓
  • 東向き
仙台 THE GRAND SKY 間取り Rタイプ
タイプ

Rタイプ

間取り

2LDK+SIC

専有面積

57.12㎡

バルコニー面積

10.98㎡

  • 玄関からリビングが見えない間取り
  • シューズインクローゼット
  • 南向き
仙台 THE GRAND SKY 間取り Aタイプ
タイプ

Aタイプ

間取り

3LDK+WIC+SIC

専有面積

72.13㎡

バルコニー面積

14.34㎡

備考

サービスバルコニー面積:4.42㎡(2~5階)、2.77㎡(6~10階)

  • 玄関からリビングが見えない間取り
  • ウォークインクローゼット
  • シューズインクローゼット
  • 出入口が2か所以上あるキッチン
  • 2面バルコニー
  • 南向き
仙台 THE GRAND SKY 間取り Dタイプ
タイプ

Dタイプ

間取り

3LDK+WIC+SIC

専有面積

71.08㎡

バルコニー面積

14.34㎡

備考

サービスバルコニー面積:2.77㎡

  • 玄関からリビングが見えない間取り
  • ウォークインクローゼット
  • シューズインクローゼット
  • 出入口が2か所以上あるキッチン
  • 2面バルコニー
  • 南向き
仙台 THE GRAND SKY 間取り J1タイプ
タイプ

J1タイプ

間取り

3LDK+WIC

専有面積

67.98㎡

バルコニー面積

-

備考

バルコニー面積:14.94㎡(2階)、15.11㎡(3~5階)、15.09㎡(6~21階)

  • 玄関からリビングが見えない間取り
  • 可変式間仕切り
  • ウォークインクローゼット
  • 西向き
仙台 THE GRAND SKY 間取り K1タイプ
タイプ

K1タイプ

間取り

3LDK+2WIC+SIC

専有面積

68.46㎡

バルコニー面積

14.58㎡

  • 玄関からリビングが見えない間取り
  • ウォークインクローゼット
  • シューズインクローゼット
  • 西向き
仙台 THE GRAND SKY 間取り Lタイプ
タイプ

Lタイプ

間取り

3LDK+2WIC+SIC

専有面積

80.01㎡

バルコニー面積

-

備考

バルコニー面積:20.29㎡(3階)、19.45㎡(4~21階)
サービスバルコニー面積:1.63㎡

  • 玄関からリビングが見えない間取り
  • ウォークインクローゼット
  • シューズインクローゼット
  • 浴室に窓
  • 西向き
仙台 THE GRAND SKY 間取り Nタイプ
タイプ

Nタイプ

間取り

3LDK+GC+2WIC+SIC

専有面積

68.47㎡

バルコニー面積

-

備考

バルコニー面積:15.40㎡(2~4階)、14.87㎡(5階)、15.41㎡(6~21階)

  • ウォークインクローゼット
  • シューズインクローゼット
  • 東向き
仙台 THE GRAND SKY 間取り Oタイプ
タイプ

Oタイプ

間取り

3LDK+WIC+SIC

専有面積

69.98㎡

バルコニー面積

13.68㎡

  • 玄関からリビングが見えない間取り
  • ウォークインクローゼット
  • シューズインクローゼット
  • 東向き
仙台 THE GRAND SKY 間取り Qタイプ
タイプ

Qタイプ

間取り

3LDK+2GC+WIC+SIC

専有面積

73.52㎡

バルコニー面積

14.4㎡

  • 玄関からリビングが見えない間取り
  • ウォークインクローゼット
  • シューズインクローゼット
  • 南向き
仙台 THE GRAND SKY 間取り T1タイプ
タイプ

T1タイプ

間取り

3LDK+2GC+WIC

専有面積

72.97㎡

バルコニー面積

14.58㎡

  • 玄関からリビングが見えない間取り
  • 可変式間仕切り
  • ウォークインクローゼット
  • 東向き
仙台 THE GRAND SKY 間取り Uタイプ
タイプ

Uタイプ

間取り

3LDK+GC+WIC+SIC

専有面積

74.06㎡

バルコニー面積

14.58㎡

備考

サービスバルコニー面積:10.92㎡

  • 可変式間仕切り
  • ウォークインクローゼット
  • シューズインクローゼット
  • 2面バルコニー
  • 東向き
仙台 THE GRAND SKY 間取り PJ2・PJ3タイプ
タイプ

PJ2・PJ3タイプ

間取り

3LDK+WIC

専有面積

67.98㎡

バルコニー面積

14.58㎡

  • 玄関からリビングが見えない間取り
  • 可変式間仕切り
  • ウォークインクローゼット
  • 西向き
仙台 THE GRAND SKY 間取り PK1・PK3タイプ
タイプ

PK1・PK3タイプ

間取り

3LDK+2WIC+SIC

専有面積

68.46㎡

バルコニー面積

14.58㎡

  • 玄関からリビングが見えない間取り
  • ウォークインクローゼット
  • シューズインクローゼット
  • 西向き
仙台 THE GRAND SKY 間取り POタイプ
タイプ

POタイプ

間取り

3LDK+WIC+SIC

専有面積

69.98㎡

バルコニー面積

13.68㎡

  • 玄関からリビングが見えない間取り
  • ウォークインクローゼット
  • シューズインクローゼット
  • 東向き
仙台 THE GRAND SKY 間取り PT2タイプ
タイプ

PT2タイプ

間取り

3LDK+2GC+WIC

専有面積

72.97㎡

バルコニー面積

14.58㎡

  • 玄関からリビングが見えない間取り
  • 可変式間仕切り
  • ウォークインクローゼット
  • 東向き
仙台 THE GRAND SKY 間取り Pタイプ
タイプ

Pタイプ

間取り

4LDK+3WIC+SIC

専有面積

101.03㎡

バルコニー面積

24.23㎡

備考

サービスバルコニー面積:2.77㎡

  • 玄関からリビングが見えない間取り
  • ウォークインクローゼット
  • シューズインクローゼット
  • 2面バルコニー
  • 南向き
仙台 THE GRAND SKY 間取り Sタイプ
タイプ

Sタイプ

間取り

4LDK+2WIC+SIC

専有面積

102.11㎡

バルコニー面積

27.86㎡

  • 可変式間仕切り
  • ウォークインクローゼット
  • シューズインクローゼット
  • 2面バルコニー
  • 南向き
仙台 THE GRAND SKY 間取り PDタイプ
タイプ

PDタイプ

間取り

4LDK+GC+4WIC+SIC

専有面積

142.79㎡

バルコニー面積

31.32㎡

  • 可変式間仕切り
  • 広いリビング
  • ウォークインクローゼット
  • シューズインクローゼット
  • 2面バルコニー
  • 西向き

このページの一番上へ