間取り
この物件の詳細情報に戻る3LDK掲載6件
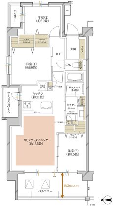
W:ウォークインクロゼット BW:ビッグウォークインクロゼット N:納戸 SC:シューズインクロゼット
※掲載の間取図は計画段階の図面を基に描き起こしたもので簡略化して表現されています。行政指導及び施工上の理由等のため、今後内容が変更になる場合があります。詳しくは図面集にてご確認ください。
※リビング・ダイニングの畳数表記については、リビング・ダイニングの扉より内側の面積から、キッチンの面積を差し引いたもので算出しております。
関連する他の物件も見てみる
特徴
- 対面キッチン(83)
- I型キッチン(81)
- 子どもと暮らす(79)
- ウォークインクローゼット(78)
- 可変式間仕切り(76)
- 床暖房(70)
- 販売前・販売予定(58)
- シューズインクローゼット(55)
- 宅配ボックス(55)
- 玄関からリビングが見えない間取り(48)
- 複層ガラス(ペアガラス)(47)
- ペット可(46)
- 西向き(32)
- 二重床/二重天井(32)
- 2面バルコニー(30)
- 南向き(30)
- ミストサウナ(16)
- L型キッチン(13)
- 出入口が2か所以上あるキッチン(12)
- 広いリビング(11)
- 広いバルコニー(9)
- 3面バルコニー(7)
- オープンキッチン(5)
- 第一種低層住居専用地域(4)
地域
間取り
価格帯
不動産会社
駅
沿線

