- 価格
-
5000万円台、6000万円台(100万円単位)(予定)
月々の支払い額を見る
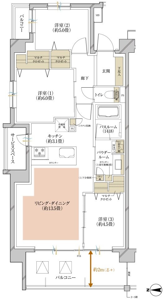
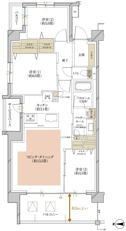
- 専有面積
-
69.06㎡、70.93㎡
- 間取り
-
3LDK
間取りを見る(7件)
- 販売スケジュール
-
2026年1月下旬 販売開始予定

