- 価格
-
2980万円~4890万円
月々の支払い額を見る
- 専有面積
-
62.11㎡~84.09㎡
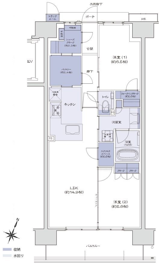
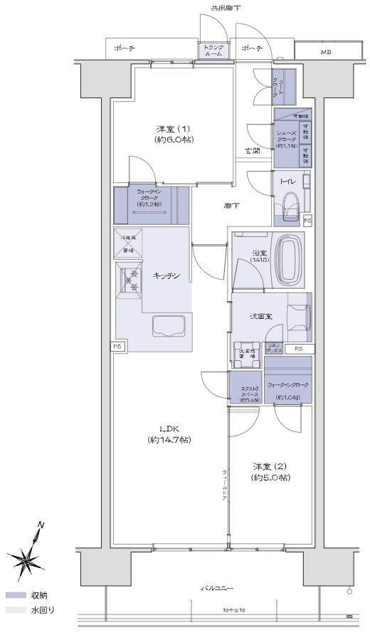
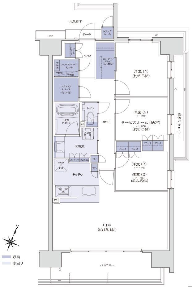
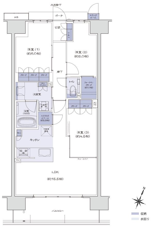
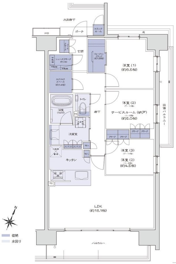
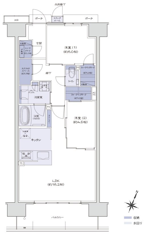
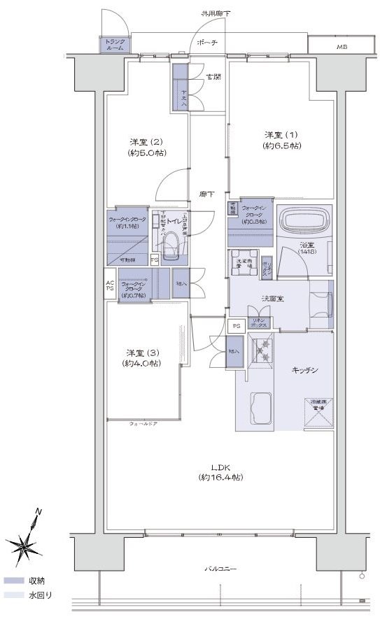
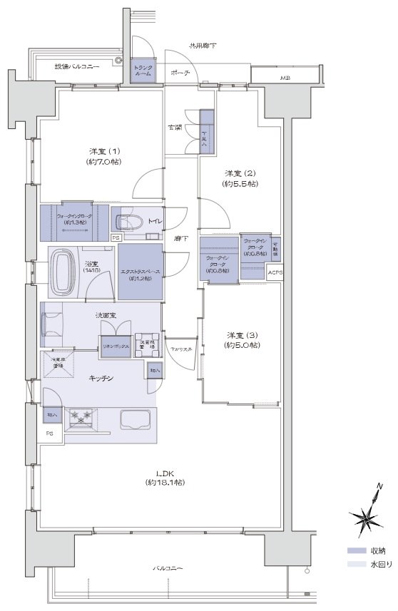
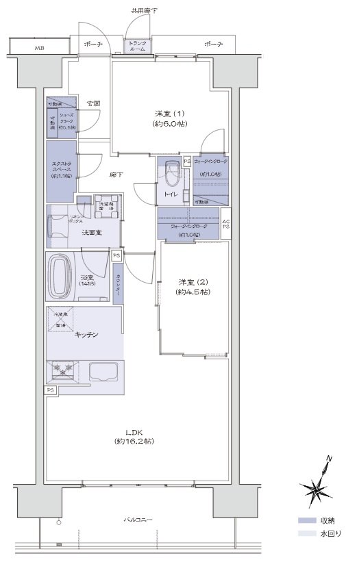
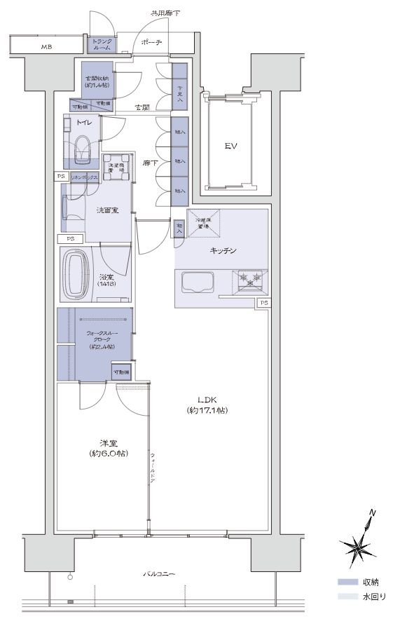
- 間取り
-
1LDK~3LDK(メニュープラン対応あり)
間取りを見る(8件)
- 販売スケジュール
-
先着順申込受付中

