- 価格
-
3208万円~8058万円
月々の支払い額を見る
- 専有面積
-
34.73㎡~91.37㎡
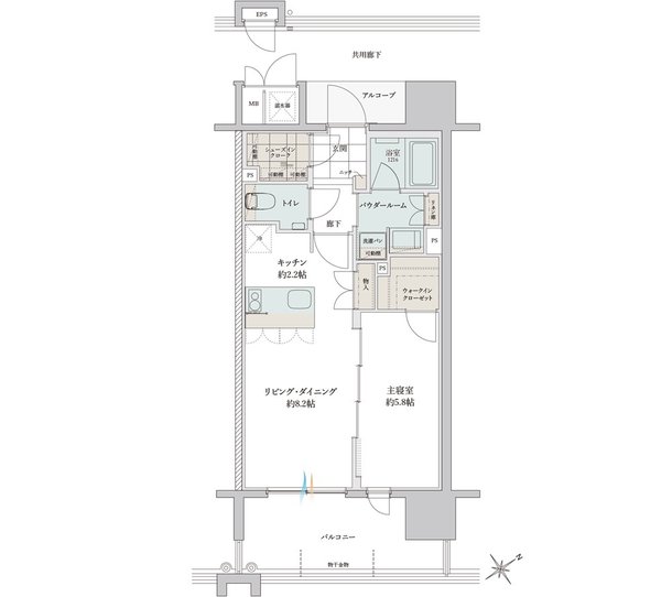
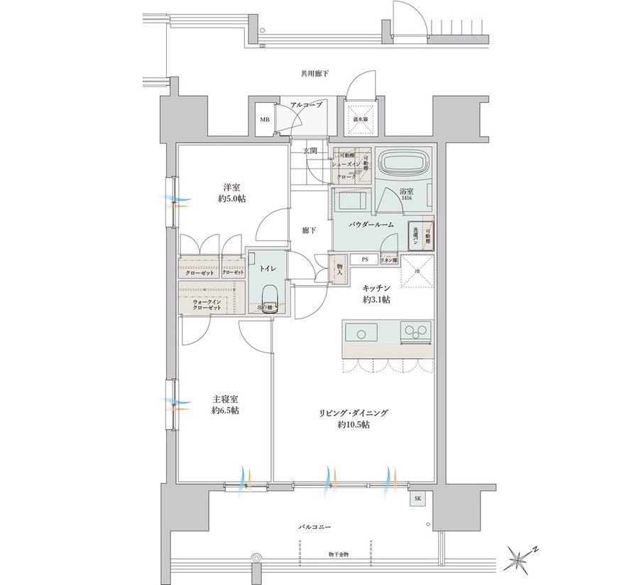
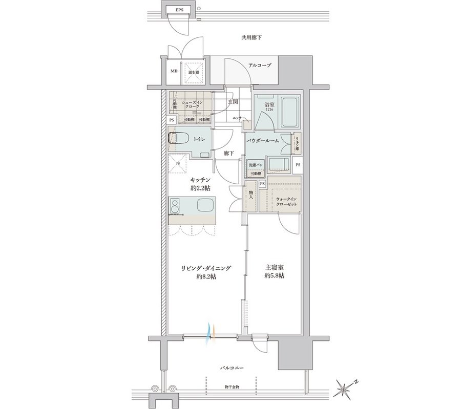
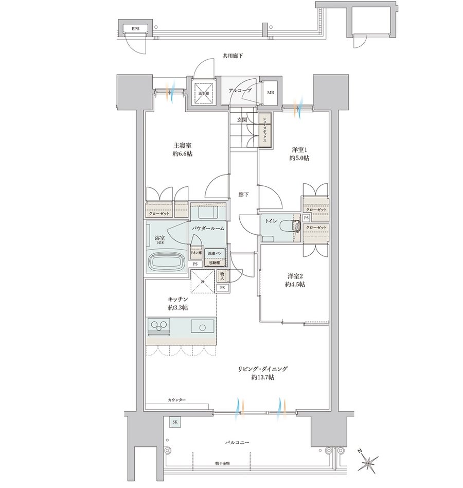
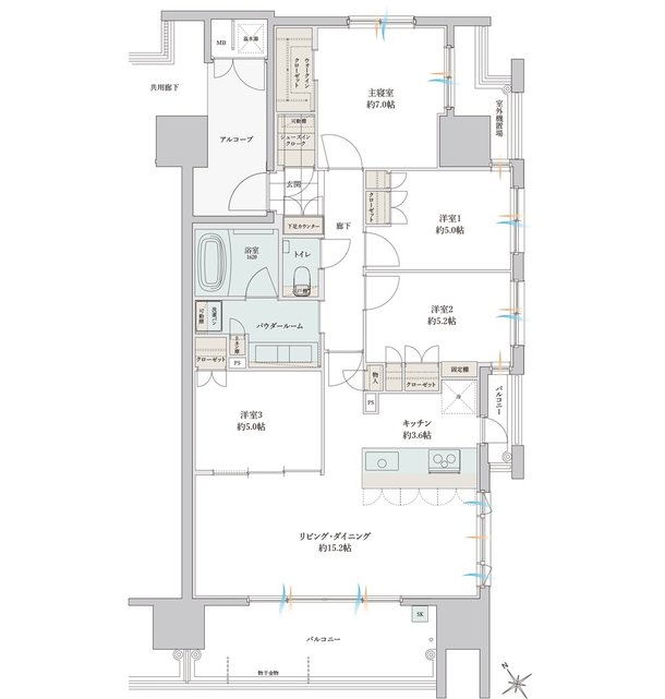
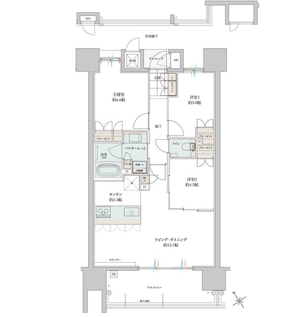
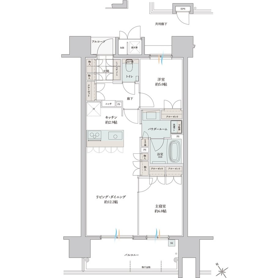
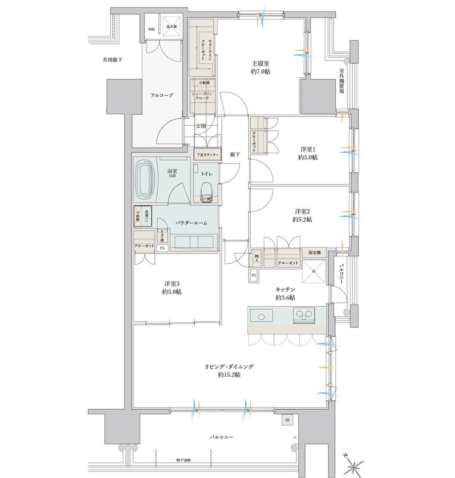
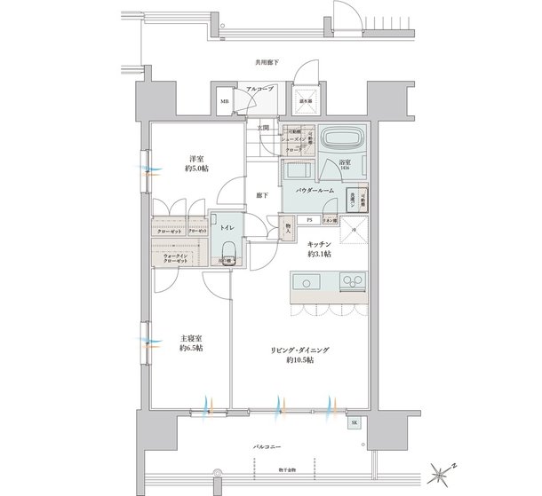
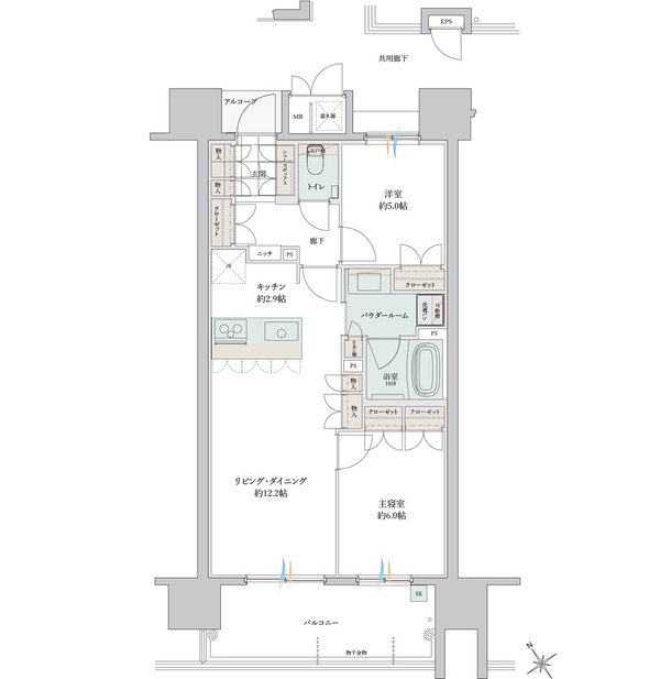
- 間取り
-
1LDK~4LDK
間取りを見る(7件)
- 販売スケジュール
-
先着順申込み受付中

