- 価格
-
3648万円~6498万円
月々の支払い額を見る
- 専有面積
-
59.16㎡~91.29㎡
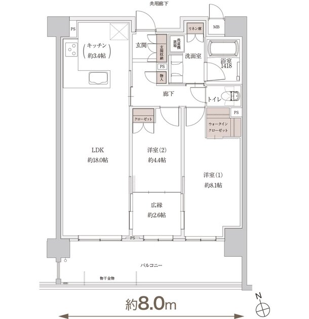
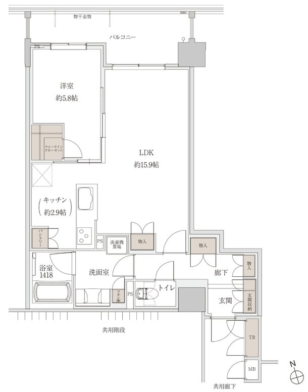
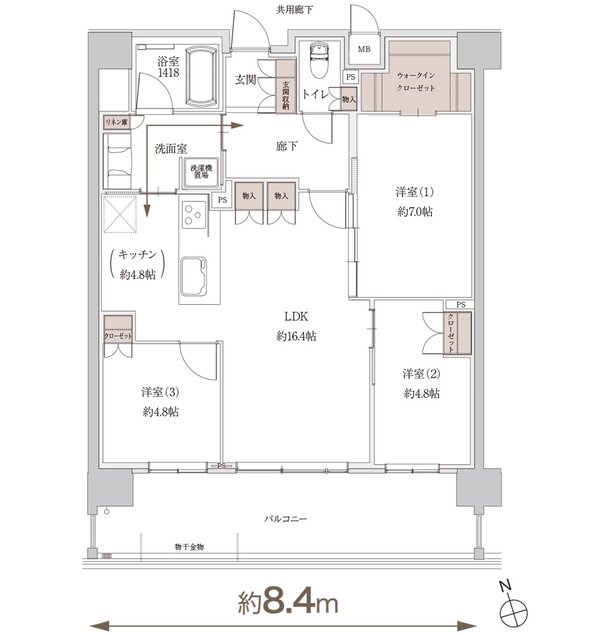
- 間取り
-
1LDK、2LDK、3LDK
間取りを見る(6件)
- 販売スケジュール
-
先着順申込受付中

