- 価格
-
4150万円~5580万円
月々の支払い額を見る
- 専有面積
-
63.82㎡~75.06㎡
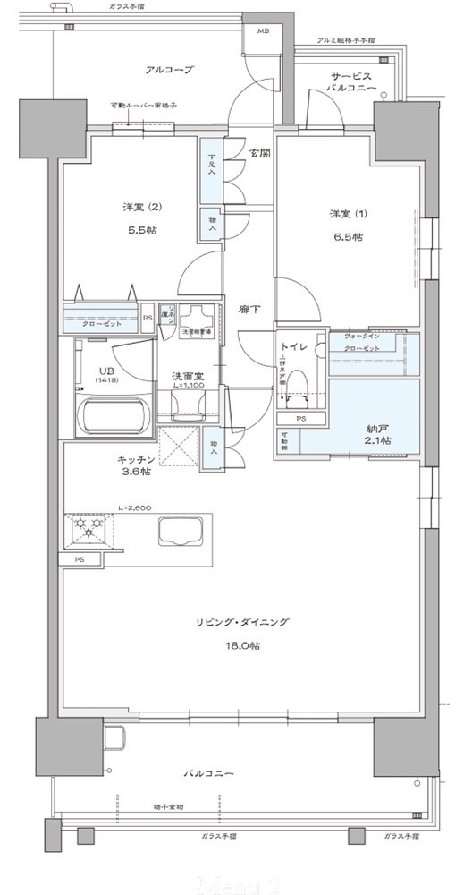
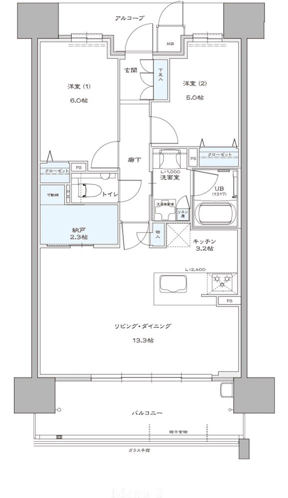
- 間取り
-
2LDK・3LDK
間取りを見る(7件)
- 販売スケジュール
-
先着順申込受付中

