- 価格
-
2988万円~5488万円
月々の支払い額を見る
- 専有面積
-
37.40㎡~70.00㎡
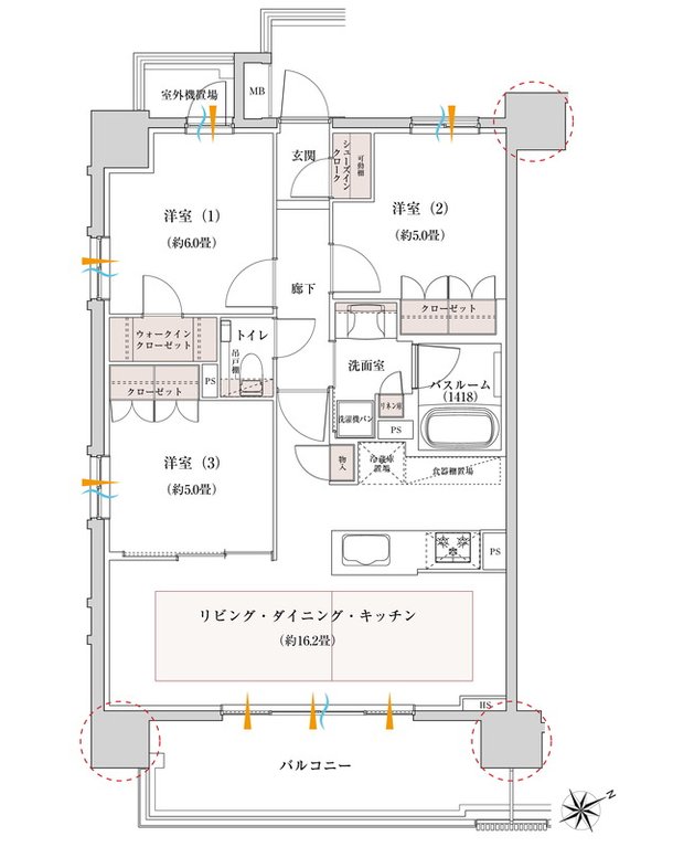
- 間取り
-
1LDK~3LDK
間取りを見る(2件)
- 販売スケジュール
-
先着順申込受付中

