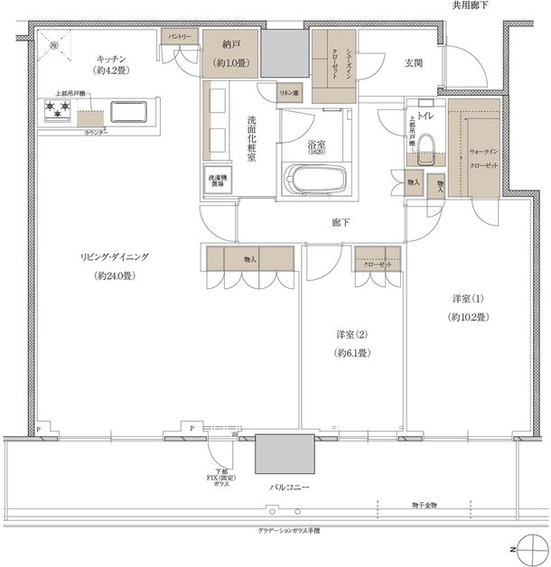
プラウドタワー神戸垂水 間取り 85SD-E type
タイプ

85SD-E type

間取り

3LDK+2WIC+SIC

専有面積

85.24㎡

バルコニー面積

85.24㎡

  • 玄関からリビングが見えない間取り
  • ウォークインクローゼット
  • シューズインクローゼット
  • 2面バルコニー
  • L字バルコニー
  • 南向き
プラウドタワー神戸垂水 間取り 71SC type
タイプ

71SC type

間取り

3LDK+N+SIC

専有面積

71.65㎡

バルコニー面積

16.15㎡

  • 可変式間仕切り
  • シューズインクローゼット
  • 南向き
プラウドタワー神戸垂水 間取り 69EA type
タイプ

69EA type

間取り

3LDK+WIC+SIC

専有面積

69.68㎡

バルコニー面積

18.16㎡

  • ウォークインクローゼット
  • シューズインクローゼット
  • 東向き
プラウドタワー神戸垂水 間取り 61WG type
タイプ

61WG type

間取り

2LDK+SIC

専有面積

61.43㎡

バルコニー面積

10.09㎡

  • 玄関からリビングが見えない間取り
  • シューズインクローゼット
  • 西向き
プラウドタワー神戸垂水 間取り 52EB type
タイプ

52EB type

間取り

2LDK

専有面積

52.81㎡

バルコニー面積

10.09㎡

  • 玄関からリビングが見えない間取り
  • 東向き
プラウドタワー神戸垂水 間取り 44WB type
タイプ

44WB type

間取り

1LDK+WIC+SIC

専有面積

44.84㎡

バルコニー面積

8.07㎡

  • 玄関からリビングが見えない間取り
  • 可変式間仕切り
  • ウォークインクローゼット
  • シューズインクローゼット
  • 西向き
プラウドタワー神戸垂水 間取り 106SL-E type
タイプ

106SL-E type

間取り

4LDK+WIC+SIC

専有面積

106.58㎡

バルコニー面積

41.77㎡

  • アルコーブ
  • 玄関からリビングが見えない間取り
  • 広いリビング
  • ウォークインクローゼット
  • シューズインクローゼット
  • 出入口が2か所以上あるキッチン
  • 2面バルコニー
  • L字バルコニー
  • 南向き
プラウドタワー神戸垂水 間取り 85WH-N type
タイプ

85WH-N type

間取り

3LDK+WIC+SIC

専有面積

85.61㎡

バルコニー面積

38.64㎡

  • 玄関からリビングが見えない間取り
  • 広いリビング
  • ウォークインクローゼット
  • シューズインクローゼット
  • 出入口が2か所以上あるキッチン
  • 2面バルコニー
  • L字バルコニー
  • 西向き
プラウドタワー神戸垂水 間取り 77SK type
タイプ

77SK type

間取り

3LDK+SIC

専有面積

77.66㎡

バルコニー面積

16.15㎡

  • 可変式間仕切り
  • シューズインクローゼット
  • 南向き
プラウドタワー神戸垂水 間取り 74WI type
タイプ

74WI type

間取り

3LDK+WIC+SIC

専有面積

74.38㎡

バルコニー面積

16.15㎡

  • 玄関からリビングが見えない間取り
  • 可変式間仕切り
  • ウォークインクローゼット
  • シューズインクローゼット
  • 西向き
プラウドタワー神戸垂水 間取り 104WL type(MENU)
タイプ

104WL type(MENU)

間取り

2LDK+N+WIC+SIC

専有面積

104.40㎡

バルコニー面積

22.20㎡

  • 玄関からリビングが見えない間取り
  • 広いリビング
  • ウォークインクローゼット
  • シューズインクローゼット
  • 西向き

このページの一番上へ