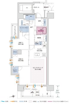
間取り
この物件の詳細情報に戻る※掲載の図面イラストは計画段階のもので変更が生じる場合がございます。
※掲載の図面は計画段階のもので変更が生じる場合がございます。
※バルコニーの奥行は、壁の中心から手すり壁の中心までの寸法であり、実際に使用できる寸法とは異なります。
※無償オプションには期限がございます。詳しくは係員にお尋ねください。
【メニュープラン検討上のご注意】
・メニュープランには受付期限があります。
・メニュープランに記載の下がり天井、梁型等の位置は施工上の都合、その他諸事情により変更となる場合があります。
・各階のバルコニーの形状・仕様に異なる部分があります。
関連する他の物件も見てみる
特徴
- 子どもと暮らす(38)
- 対面キッチン(37)
- I型キッチン(36)
- ウォークインクローゼット(35)
- スロップシンク(33)
- モデルルーム公開中(30)
- 浴室暖房換気乾燥機(30)
- 食器洗い乾燥機(食洗機)(29)
- 一人暮らし・二人暮らし向け(29)
- 複層ガラス(ペアガラス)(28)
- エコマンション(27)
- 宅配ボックス(24)
- 広いバルコニー(23)
- ハンズフリーキー(20)
- 24時間ゴミ出し可能(15)
- 床暖房(14)
- 玄関からリビングが見えない間取り(13)
- 駅近(駅徒歩5分以内・駅直結)(10)
- 複数沿線利用可能(10)
- L字バルコニー(10)
- 一括受電サービス(9)
- ZEHマンション(9)
- アウトフレーム工法(7)
- L型キッチン(5)
- 西向き(3)
- リバーサイド・川沿い・水辺(3)
- オンラインで相談・見学・商談可能(3)
- 高級マンション・ハイグレードマンション(3)
地域
間取り
価格帯
不動産会社
駅
沿線

