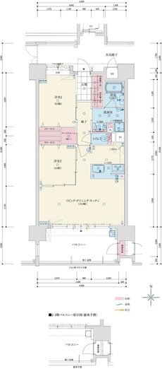
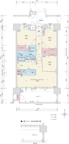
間取り
この物件の詳細情報に戻る関連する他の物件も見てみる
特徴
- 子どもと暮らす(18)
- I型キッチン(17)
- 対面キッチン(17)
- 一人暮らし・二人暮らし向け(14)
- 平置き駐車場(13)
- 可変式間仕切り(12)
- 駐車場100%以上(12)
- モデルルーム公開中(11)
- 出入口が2か所以上あるキッチン(10)
- 浴室に窓(10)
- 南向き(10)
- スロップシンク(9)
- 2面バルコニー(8)
- 宅配ボックス(8)
- ラウンジ(7)
- 全戸南向き(5)
- 広いバルコニー(4)
- 防災設備(4)
- 南向き中心(4)
- テレワーク・在宅勤務におすすめ(3)
- 和室付き(2)
- ポーチ(2)
- L字バルコニー(2)
- 太陽光発電(1)
- リバーサイド・川沿い・水辺(1)
地域
間取り
価格帯
不動産会社

