- 価格
-
2730万円~4050万円
月々の支払い額を見る
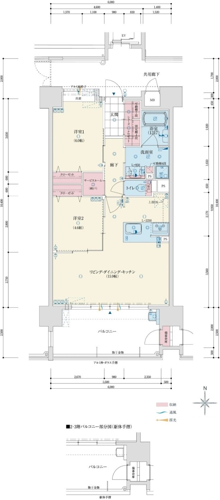
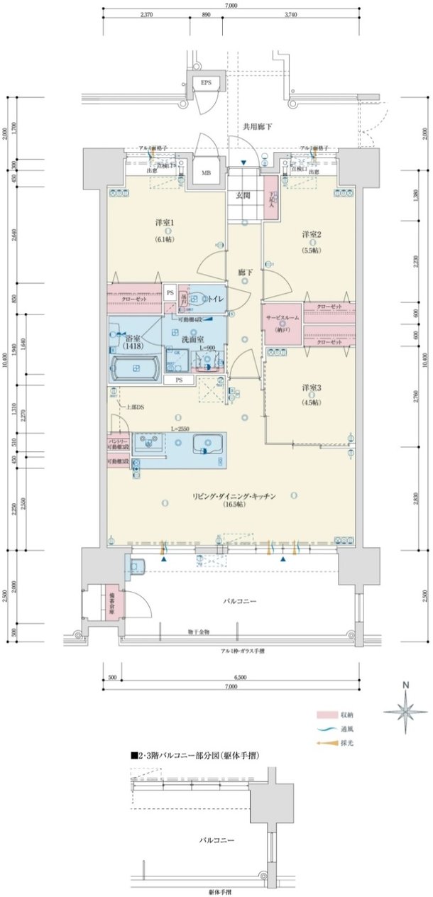
- 専有面積
-
62.77㎡~84.40㎡
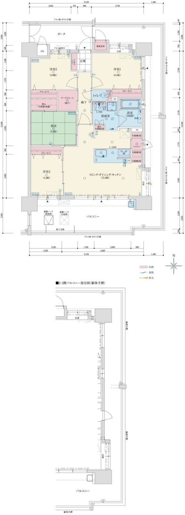
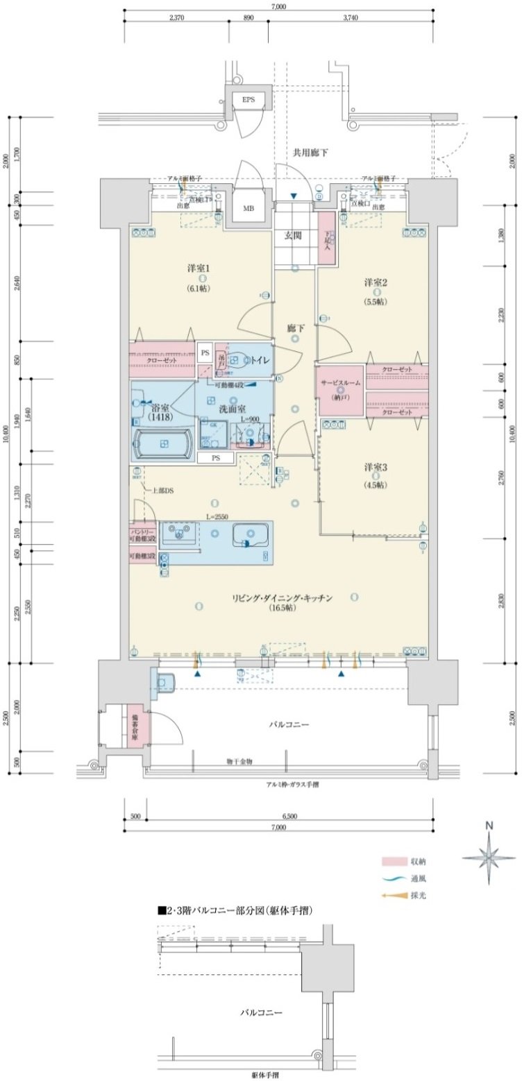
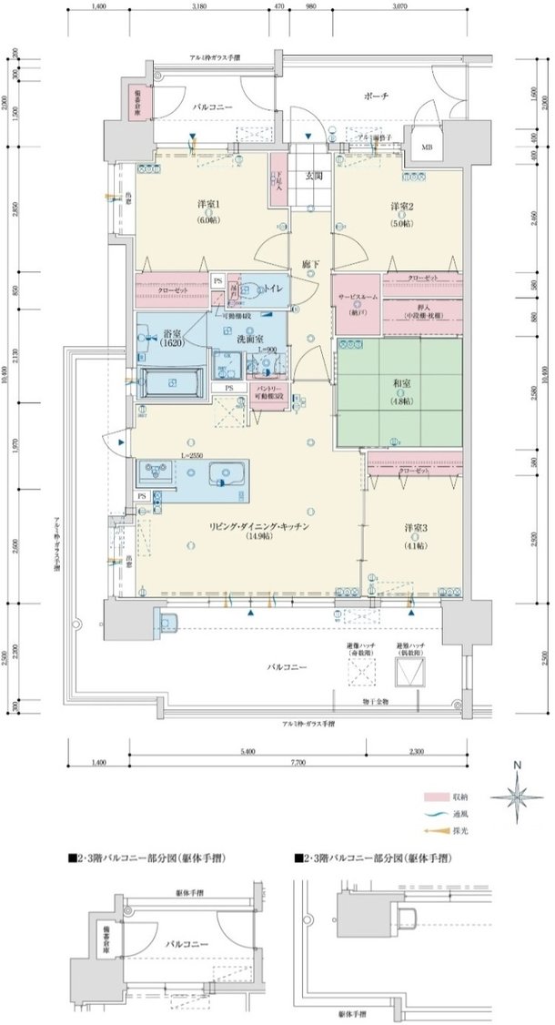
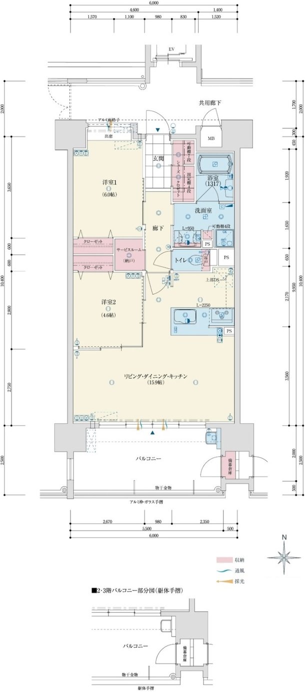
- 間取り
-
2LDK~4LDK
間取りを見る(4件)
- 販売スケジュール
-
先着順

