- 価格
-
4398万円~5998万円
月々の支払い額を見る
- 専有面積
-
71.25㎡~79.24㎡
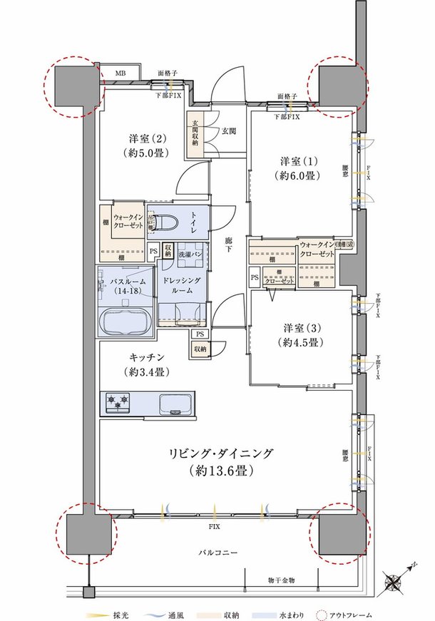
- 間取り
-
3LDK
間取りを見る(3件)
- 販売スケジュール
-
先着順申込み受付中 受付場所/「サーパス富山桜橋」マンションギャラリー

