- 価格
-
5658万円
月々の支払い額を見る
- 専有面積
-
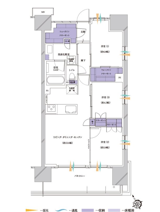
67.20㎡
- 間取り
-
3LDK
間取りを見る(2件)
- 販売スケジュール
-
第1期(31次・39次)先着順申込受付中。

