間取り
この物件の詳細情報に戻る2LDK掲載2件
3LDK掲載8件
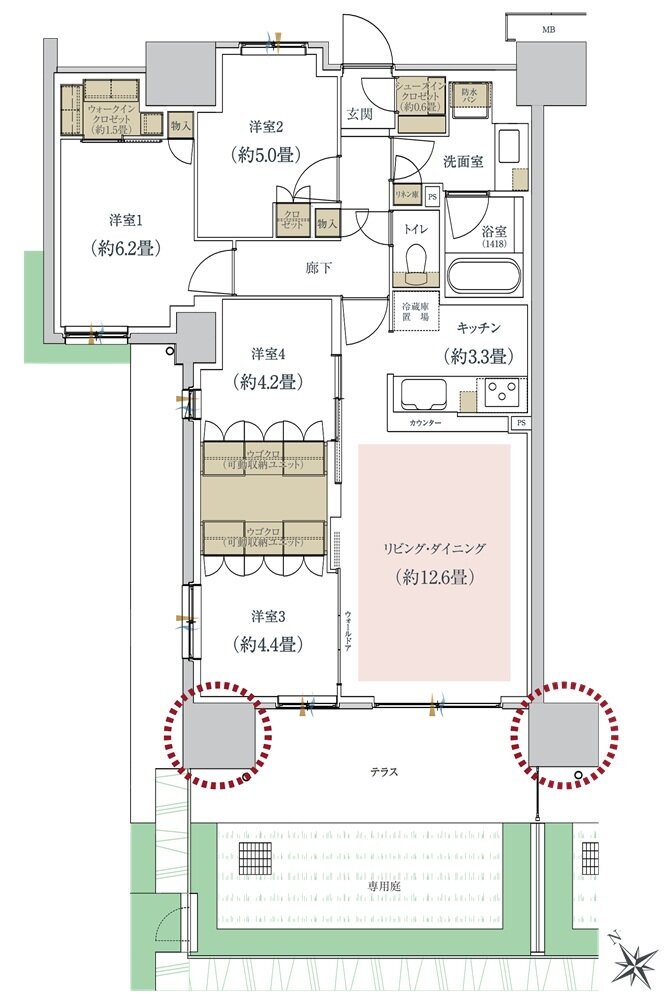
N=納戸 WIC=ウォークインクロゼット SIC=シューズインクロゼット LC=ランドリークロゼット
※掲載の図面は計画段階のものであり、変更となる場合がございます。予めご了承ください。
関連する他の物件も見てみる
特徴
- I型キッチン(43)
- 対面キッチン(43)
- 子どもと暮らす(42)
- ウォークインクローゼット(42)
- 床暖房(40)
- 可変式間仕切り(40)
- 一人暮らし・二人暮らし向け(34)
- 食器洗い乾燥機(食洗機)(33)
- 浴室暖房換気乾燥機(32)
- モデルルーム公開中(32)
- 宅配ボックス(31)
- 平置き駐車場(30)
- シューズインクローゼット(30)
- 複層ガラス(ペアガラス)(29)
- ペット可(28)
- 玄関からリビングが見えない間取り(28)
- エコマンション(27)
- 24時間ゴミ出し可能(27)
- 大規模マンション(25)
- 南向き(25)
- 販売前・販売予定(24)
- 防災設備(24)
- ラウンジ(23)
- 2面バルコニー(22)
- ディスポーザー(19)
- アウトフレーム工法(19)
- 東向き(17)
- ZEHマンション(16)
- 電気自動車対応(16)
- テラス(15)
- 西向き(15)
- 出入口が2か所以上あるキッチン(15)
- 南西向き(15)
- 二重床/二重天井(15)
- ルーフバルコニー(14)
- 専用庭(12)
- ゲストルーム(10)
- カーシェア(7)
- IoTマンション(6)
- パーティールーム(6)
- レンタサイクル(3)
地域
間取り
価格帯
不動産会社
駅
沿線

