- 価格
-
3400万円台~7200万円台(100万円単位)(予定)
月々の支払い額を見る
- 専有面積
-
61.98㎡~84.61㎡
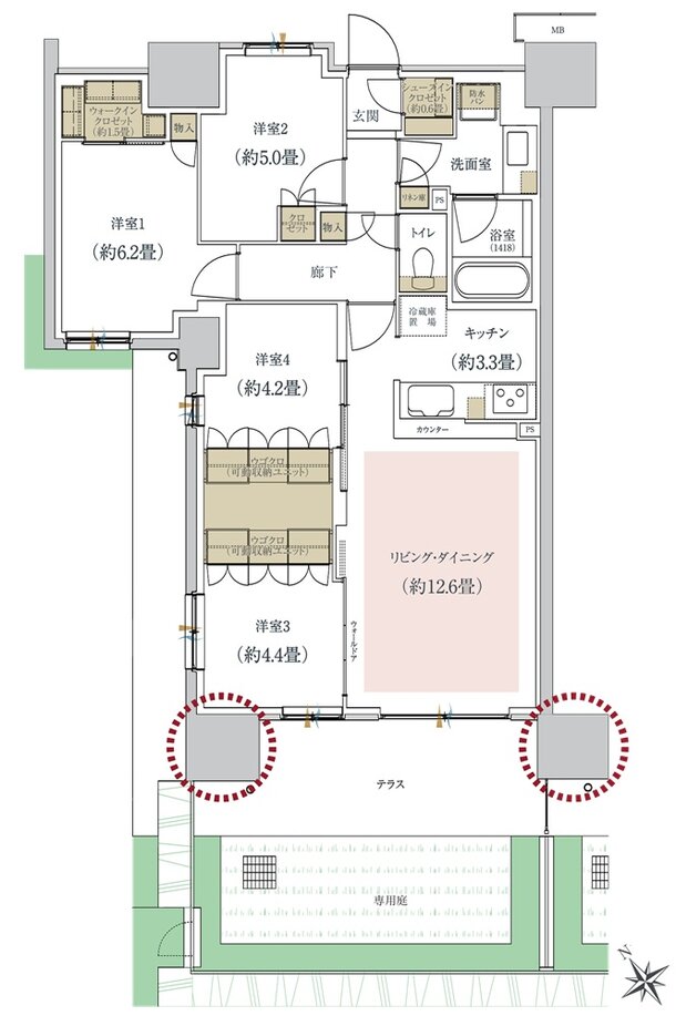
- 間取り
-
2LDK+S(納戸)~4LDK
間取りを見る(14件)
- 販売スケジュール
-
2025年11月下旬販売開始(予定)