アトラスタワー小平小川 間取り E2タイプ
タイプ

E2タイプ

間取り

2LDK+wic+sic

専有面積

59.74㎡

バルコニー面積

12.71㎡

  • 玄関からリビングが見えない間取り
  • ウォークインクローゼット
  • シューズインクローゼット
  • 南向き
アトラスタワー小平小川 間取り G2タイプ
タイプ

G2タイプ

間取り

3LDK+wic

専有面積

70.9㎡

バルコニー面積

12.9㎡

  • 玄関からリビングが見えない間取り
  • ウォークインクローゼット
  • 東向き
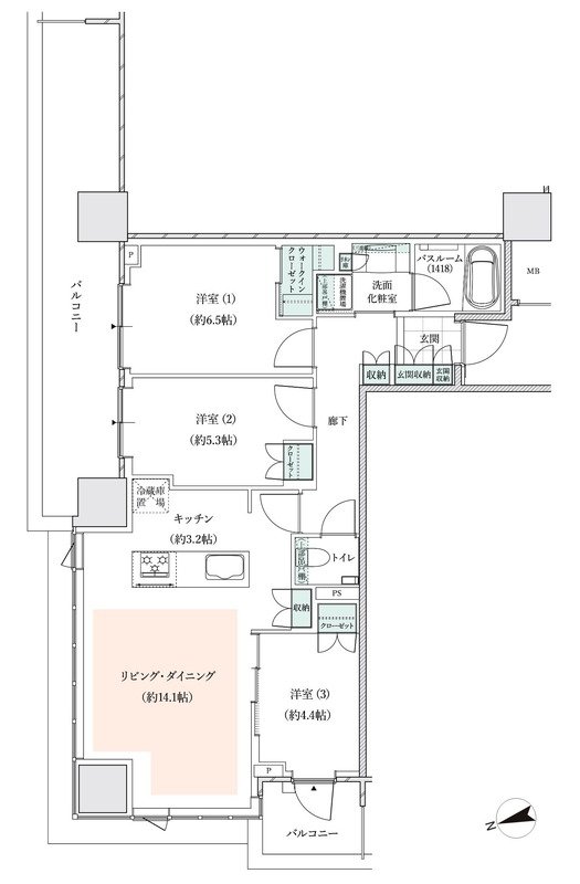
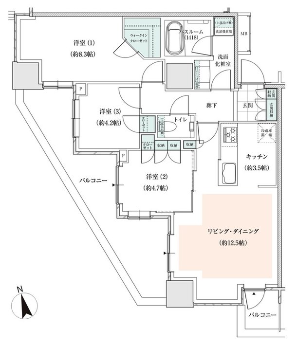
アトラスタワー小平小川 間取り G3タイプ
タイプ

G3タイプ

間取り

3LDK+wic+sic

専有面積

71.32㎡

バルコニー面積

14.96㎡

  • 玄関からリビングが見えない間取り
  • ウォークインクローゼット
  • シューズインクローゼット
  • 東向き
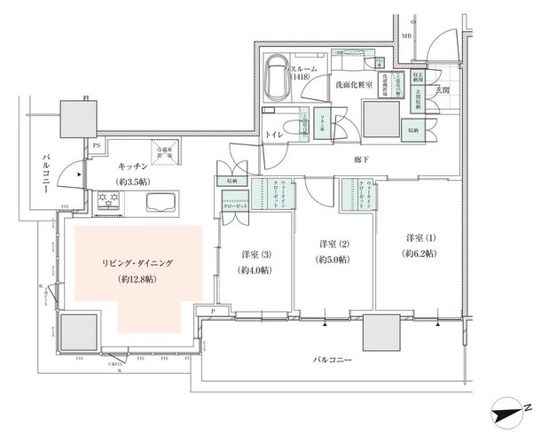
アトラスタワー小平小川 間取り C2タイプ
タイプ

C2タイプ

間取り

3LDK+wic+sic

専有面積

71.8㎡

バルコニー面積

12.76㎡

  • 玄関からリビングが見えない間取り
  • ウォークインクローゼット
  • シューズインクローゼット
  • 西向き
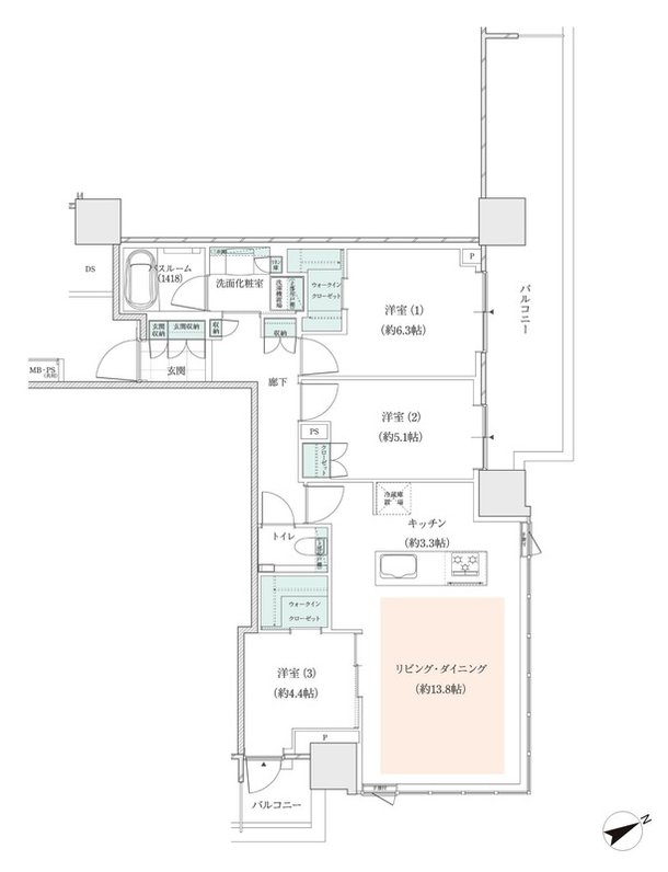
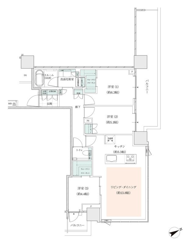
アトラスタワー小平小川 間取り E1タイプ
タイプ

E1タイプ

間取り

3LDK+wic+sic

専有面積

72.47㎡

バルコニー面積

12.71㎡

  • 玄関からリビングが見えない間取り
  • ウォークインクローゼット
  • シューズインクローゼット
  • 南向き
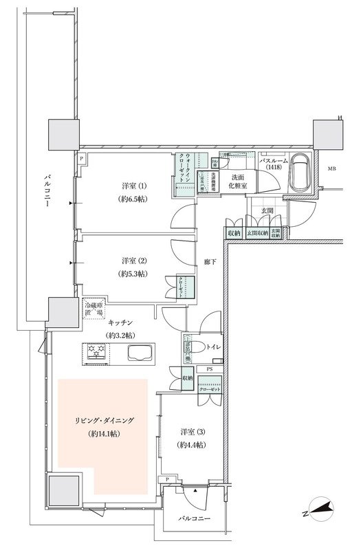
アトラスタワー小平小川 間取り B1タイプ
タイプ

B1タイプ

間取り

3LDK+wic+sic

専有面積

72.63㎡

バルコニー面積

13.25㎡

  • 玄関からリビングが見えない間取り
  • ウォークインクローゼット
  • シューズインクローゼット
  • 西向き
アトラスタワー小平小川 間取り H2タイプ
タイプ

H2タイプ

間取り

3LDK+wic

専有面積

73.92㎡

バルコニー面積

13.28㎡

  • 玄関からリビングが見えない間取り
  • ウォークインクローゼット
  • 南東向き
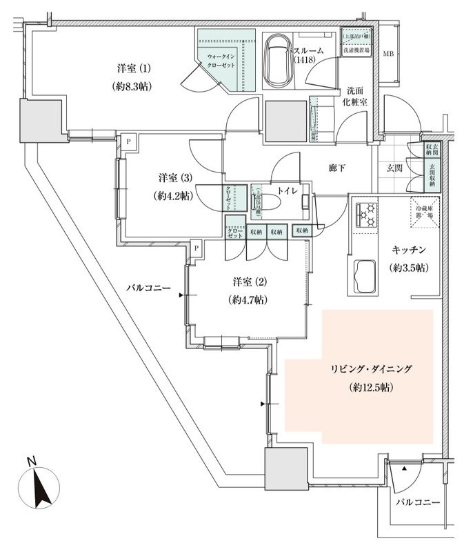
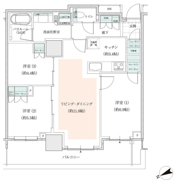
アトラスタワー小平小川 間取り A1タイプ
タイプ

A1タイプ

間取り

3LDK+wic

専有面積

74.27㎡

バルコニー面積

22.62㎡

  • ウォークインクローゼット
  • 2面バルコニー
  • 西向き
アトラスタワー小平小川 間取り D1タイプ
タイプ

D1タイプ

間取り

3LDK+wic

専有面積

74.43㎡

バルコニー面積

18.51㎡

  • 玄関からリビングが見えない間取り
  • ウォークインクローゼット
  • 2面バルコニー
  • 東向き
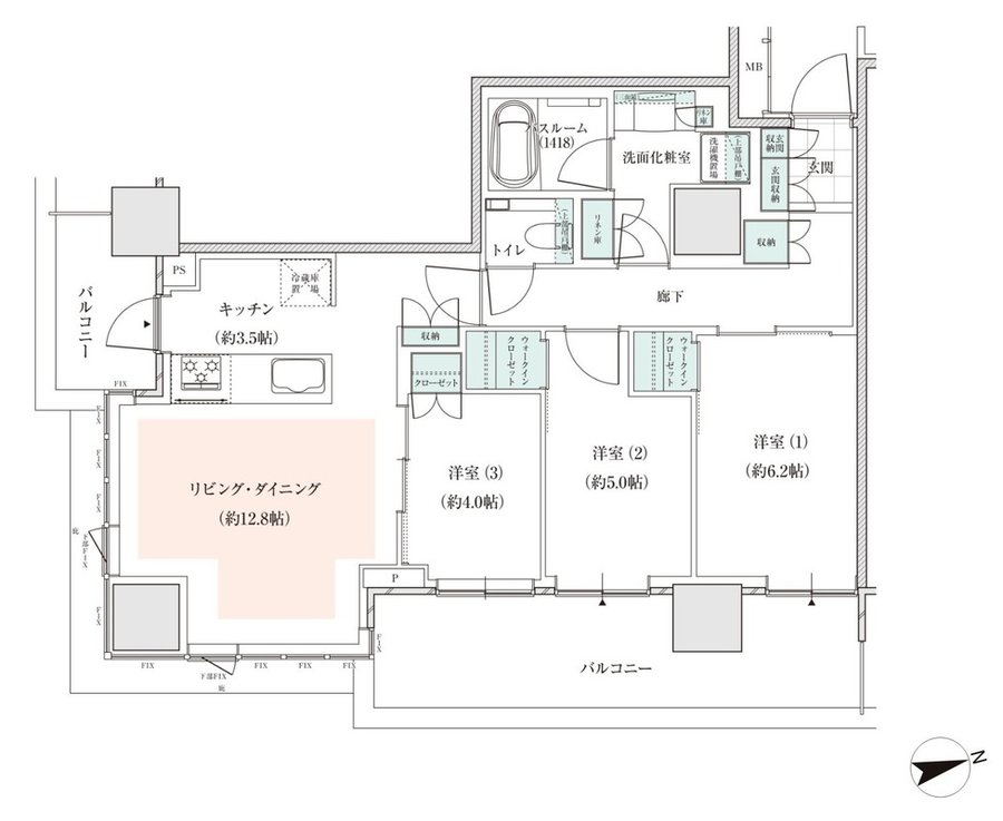
アトラスタワー小平小川 間取り F1タイプ
タイプ

F1タイプ

間取り

3LDK+2wic

専有面積

75.24㎡

バルコニー面積

18.07㎡

  • 玄関からリビングが見えない間取り
  • ウォークインクローゼット
  • 出入口が2か所以上あるキッチン
  • 2面バルコニー
  • 南向き
アトラスタワー小平小川 間取り I2タイプ
タイプ

I2タイプ

間取り

3LDK+2wic

専有面積

75.78㎡

バルコニー面積

20.41㎡

  • ウォークインクローゼット
  • 2面バルコニー
  • 東向き

このページの一番上へ