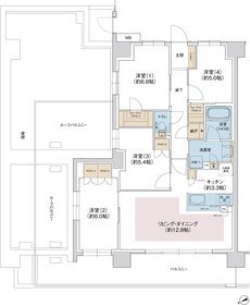
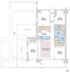
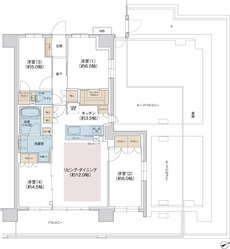
間取り
この物件の詳細情報に戻る3LDK掲載18件
※WIC:ウォークインクロゼット S:サービスルーム(納戸) N:納戸 FC : ファミリークローゼット
関連する他の物件も見てみる
特徴
- 子どもと暮らす(103)
- 対面キッチン(102)
- I型キッチン(100)
- ウォークインクローゼット(95)
- 一人暮らし・二人暮らし向け(93)
- 可変式間仕切り(82)
- 床暖房(72)
- 食器洗い乾燥機(食洗機)(66)
- 複数沿線利用可能(64)
- モデルルーム公開中(63)
- 南向き(61)
- アルコーブ(59)
- 大規模マンション(54)
- 複層ガラス(ペアガラス)(52)
- 浴室暖房換気乾燥機(49)
- ZEHマンション(48)
- 玄関からリビングが見えない間取り(48)
- エコマンション(47)
- 2面バルコニー(42)
- 東向き(41)
- 出入口が2か所以上あるキッチン(31)
- 広いリビング(27)
- 西向き(26)
- 省エネ対応(20)
- L字バルコニー(16)
- 南西向き(15)
- ルーフバルコニー(6)
- テラス(6)
- 専用庭(5)
地域
間取り
価格帯
不動産会社
駅
沿線

