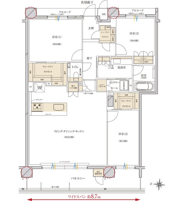
レ・ジェイド甲子園口 間取り O TYPE(駐車場優先権利付)
タイプ

O TYPE(駐車場優先権利付)

間取り

3LDK+2WIC+SIC

専有面積

107.97㎡

バルコニー面積

15.11㎡

備考

アルコーブ面積:5.12㎡
※専有面積に防災備蓄倉庫面積0.55㎡を含む

  • アルコーブ
  • ウォークインクローゼット
  • シューズインクローゼット
  • 西向き
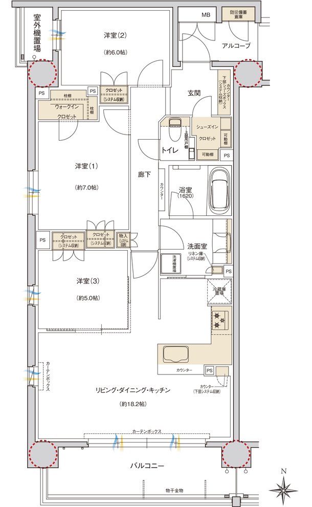
レ・ジェイド甲子園口 間取り M TYPE(駐車場優先権利付)
タイプ

M TYPE(駐車場優先権利付)

間取り

3LDK+2WIC+SIC+N

専有面積

120.53㎡

バルコニー面積

16.38㎡

備考

アルコーブ面積:8.73㎡
室外機置場面積:2.28㎡
※専有面積に防災備蓄倉庫面積0.61㎡を含む

  • アルコーブ
  • 玄関からリビングが見えない間取り
  • ウォークインクローゼット
  • シューズインクローゼット
  • 南向き
  • フラットフロア
レ・ジェイド甲子園口 間取り H TYPE
タイプ

H TYPE

間取り

2LDK+S+WIC

専有面積

70.5㎡

バルコニー面積

10.46㎡

備考

アルコーブ面積:3.18㎡
※専有面積に防災備蓄倉庫面積0.52㎡を含む

  • アルコーブ
  • 可変式間仕切り
  • ウォークインクローゼット
  • 南向き
  • フラットフロア
レ・ジェイド甲子園口 間取り B TYPE
タイプ

B TYPE

間取り

3LDK+WIC

専有面積

70.64㎡

バルコニー面積

10.43㎡

備考

アルコーブ面積:3.00㎡
※専有面積に防災備蓄倉庫面積0.55㎡を含む

  • アルコーブ
  • 可変式間仕切り
  • ウォークインクローゼット
  • 西向き
レ・ジェイド甲子園口 間取り D TYPE
タイプ

D TYPE

間取り

3LDK+WIC

専有面積

70.64㎡

バルコニー面積

10.43㎡

備考

アルコーブ面積:3.00㎡
※専有面積に防災備蓄倉庫面積0.55㎡を含む

  • アルコーブ
  • ウォークインクローゼット
  • 西向き
レ・ジェイド甲子園口 間取り C TYPE
タイプ

C TYPE

間取り

3LDK+WIC

専有面積

72.69㎡

バルコニー面積

10.79㎡

備考

アルコーブ面積:3.36㎡
※防災備蓄倉庫面積0.55㎡を含む

  • アルコーブ
  • 可変式間仕切り
  • ウォークインクローゼット
  • 西向き
  • フラットフロア
レ・ジェイド甲子園口 間取り E TYPE
タイプ

E TYPE

間取り

3LDK+WIC

専有面積

75.29㎡

バルコニー面積

10.86㎡

備考

アルコーブ面積:3.48㎡
※専有面積に防災備蓄倉庫面積0.84㎡を含む

  • アルコーブ
  • 可変式間仕切り
  • ウォークインクローゼット
  • 西向き
レ・ジェイド甲子園口 間取り I TYPE
タイプ

I TYPE

間取り

3LDK+WIC

専有面積

75.34㎡

バルコニー面積

11.18㎡

備考

アルコーブ面積:3.19㎡
※防災備蓄倉庫面積0.52㎡を含む

  • アルコーブ
  • 可変式間仕切り
  • ウォークインクローゼット
  • 南向き
  • フラットフロア
レ・ジェイド甲子園口 間取り A TYPE
タイプ

A TYPE

間取り

3LDK+WIC

専有面積

80.54㎡

バルコニー面積

9.65㎡

備考

アルコーブ面積:6.40㎡
室外機置場面積:2.40㎡

  • アルコーブ
  • ウォークインクローゼット
  • 浴室に窓
  • 西向き
レ・ジェイド甲子園口 間取り F TYPE
タイプ

F TYPE

間取り

3LDK+WIC

専有面積

86.03㎡

バルコニー面積

10.98㎡

備考

アルコーブ面積:3.68㎡
室外機置場面積:2.28㎡
※防災備蓄倉庫面積0.61㎡を含む

  • アルコーブ
  • 玄関からリビングが見えない間取り
  • 可変式間仕切り
  • ウォークインクローゼット
  • シューズインクローゼット
  • 出入口が2か所以上あるキッチン
  • 南向き
  • フラットフロア

このページの一番上へ