ザ・グランドグレイス 大阪西九条 間取り H type
タイプ

H type

間取り

2LDK+S

専有面積

62.16㎡

バルコニー面積

11.20㎡

  • 可変式間仕切り
  • 南向き
  • フラットフロア
ザ・グランドグレイス 大阪西九条 間取り M type
タイプ

M type

間取り

3LDK+WIC

専有面積

65.15㎡

バルコニー面積

-

備考

バルコニー面積:11.10㎡(2階)、11.90㎡(3~15階)

  • ウォークインクローゼット
  • 東向き
  • フラットフロア
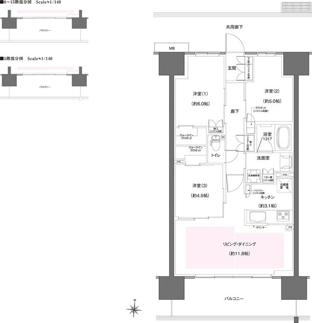
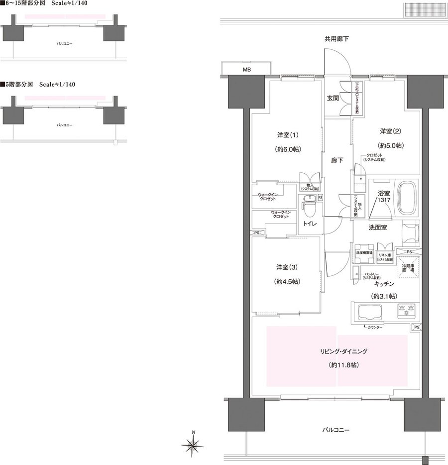
ザ・グランドグレイス 大阪西九条 間取り G type
タイプ

G type

間取り

3LDK+WIC

専有面積

65.49㎡

バルコニー面積

11.80㎡

  • ウォークインクローゼット
  • 南向き
  • フラットフロア
ザ・グランドグレイス 大阪西九条 間取り L type
タイプ

L type

間取り

3LDK+WIC

専有面積

65.70㎡

バルコニー面積

12.00㎡

  • ウォークインクローゼット
  • 東向き
  • フラットフロア
ザ・グランドグレイス 大阪西九条 間取り K type
タイプ

K type

間取り

3LDK+WIC

専有面積

66.24㎡

バルコニー面積

12.10㎡

  • ウォークインクローゼット
  • 東向き
  • フラットフロア
ザ・グランドグレイス 大阪西九条 間取り F type
タイプ

F type

間取り

3LDK+2WIC

専有面積

68.26㎡

バルコニー面積

12.30㎡

  • ウォークインクローゼット
  • 南向き
  • フラットフロア
ザ・グランドグレイス 大阪西九条 間取り D type
タイプ

D type

間取り

3LDK+WTC

専有面積

69.37㎡

バルコニー面積

12.50㎡

  • ウォークインクローゼット
  • 南向き
  • フラットフロア
ザ・グランドグレイス 大阪西九条 間取り E type
タイプ

E type

間取り

3LDK+2WIC

専有面積

69.37㎡

バルコニー面積

12.50㎡

  • 可変式間仕切り
  • ウォークインクローゼット
  • 南向き
  • フラットフロア
ザ・グランドグレイス 大阪西九条 間取り C type
タイプ

C type

間取り

3LDK+WIC

専有面積

70.48㎡

バルコニー面積

12.70㎡

  • 可変式間仕切り
  • ウォークインクローゼット
  • 南向き
  • フラットフロア
ザ・グランドグレイス 大阪西九条 間取り B type
タイプ

B type

間取り

3LDK+WIC+N

専有面積

72.15㎡

バルコニー面積

13.00㎡

  • ウォークインクローゼット
  • 南向き
  • フラットフロア
ザ・グランドグレイス 大阪西九条 間取り N type
タイプ

N type

間取り

3LDK+WIC+WTC

専有面積

75.55㎡

バルコニー面積

-

備考

バルコニー面積:12.60㎡(3~5階)、11.82㎡(6~15階)

  • ウォークインクローゼット
  • 東向き
  • フラットフロア
ザ・グランドグレイス 大阪西九条 間取り J type
タイプ

J type

間取り

3LDK+WIC+WTC

専有面積

76.65㎡

バルコニー面積

-

備考

バルコニー面積:12.80㎡(2階)、22.70㎡(3~5階)、18.94㎡(6~15階)
サービスバルコニー面積:0.91㎡(3~5階)

  • ウォークインクローゼット
  • 2面バルコニー
  • L字バルコニー
  • 東向き
  • フラットフロア
ザ・グランドグレイス 大阪西九条 間取り A・Ag type
タイプ

A・Ag type

間取り

3LDK+WIC+SIC

専有面積

79.21㎡

バルコニー面積

-

備考

バルコニー面積:13.20㎡(2~5階)、12.32㎡(6~15階)
サービスバルコニー面積:3.00㎡(2~15階)
サービススペース面積:3.00㎡(1階)
テラス面積:13.20㎡(1階)
専用庭面積:13.20㎡(1階)

  • 玄関からリビングが見えない間取り
  • 可変式間仕切り
  • ウォークインクローゼット
  • シューズインクローゼット
  • 2面バルコニー
  • テラス
  • 専用庭
  • 南向き
  • フラットフロア
ザ・グランドグレイス 大阪西九条 間取り I type
タイプ

I type

間取り

3LDK+2WIC

専有面積

80.51㎡

バルコニー面積

-

備考

バルコニー面積:13.60㎡(2~5階)、12.72㎡(6~15階)

  • 広いリビング
  • ウォークインクローゼット
  • 南向き
  • フラットフロア

このページの一番上へ