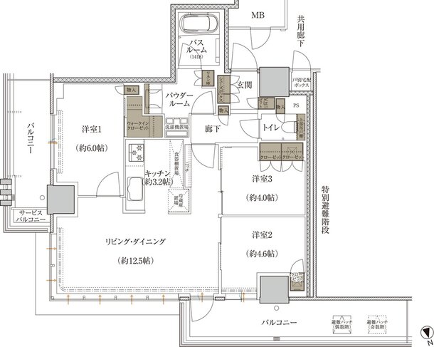
プレミストタワー千里丘 間取り P-B TYPE
タイプ

P-B TYPE

間取り

3LDK+SIC

専有面積

84.05㎡

バルコニー面積

16.53㎡

備考

※専有面積に、戸別宅配ボックス面積1.04㎡を含む
サービスバルコニー面積:1.07㎡

  • シューズインクローゼット
  • 2面バルコニー
  • 北向き
プレミストタワー千里丘 間取り S-F TYPE
タイプ

S-F TYPE

間取り

2LDK+SIC

専有面積

56.15㎡

バルコニー面積

13.78㎡

備考

※専有面積に、戸別宅配ボックス面積1.38㎡を含む

  • 玄関からリビングが見えない間取り
  • シューズインクローゼット
  • 北向き
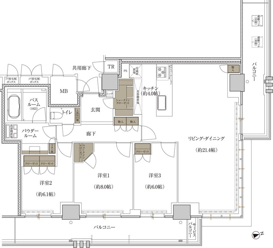
プレミストタワー千里丘 間取り T-F TYPE
タイプ

T-F TYPE

間取り

3LDK+N+2SIC+3WIC

専有面積

126.57㎡

バルコニー面積

23.76㎡

備考

※専有面積に、戸別宅配ボックス面積1.60㎡を含む
サービスバルコニー面積:1.07㎡

  • 玄関からリビングが見えない間取り
  • ウォークインクローゼット
  • シューズインクローゼット
  • 2面バルコニー
  • 南向き
プレミストタワー千里丘 間取り T-F TYPE PLAN SELECT
タイプ

T-F TYPE PLAN SELECT

間取り

2LDK+2N+P+2SIC+2WIC

専有面積

126.57㎡

バルコニー面積

23.76㎡

備考

※専有面積に、戸別宅配ボックス面積1.60㎡を含む
サービスバルコニー面積:1.07㎡

  • 玄関からリビングが見えない間取り
  • ウォークインクローゼット
  • シューズインクローゼット
  • 2面バルコニー
  • 南向き
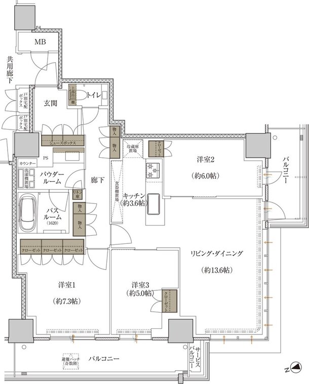
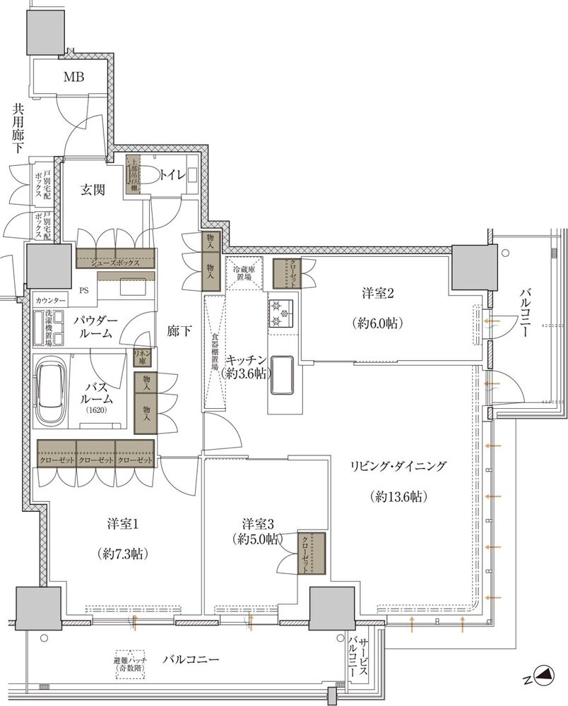
プレミストタワー千里丘 間取り P-D TYPE
タイプ

P-D TYPE

間取り

3LDK

専有面積

85.19㎡

バルコニー面積

16.19㎡

備考

※専有面積に、戸別宅配ボックス面積0.99㎡を含む
サービスバルコニー面積:1.07㎡

  • 玄関からリビングが見えない間取り
  • 2面バルコニー
  • 南向き
プレミストタワー千里丘 間取り P-F TYPE
タイプ

P-F TYPE

間取り

3LDK+SIC+WIC

専有面積

72.32㎡

バルコニー面積

12.27㎡

備考

※専有面積に、戸別宅配ボックス面積1.66㎡を含む

  • 玄関からリビングが見えない間取り
  • ウォークインクローゼット
  • シューズインクローゼット
  • 南向き
プレミストタワー千里丘 間取り P-J TYPE
タイプ

P-J TYPE

間取り

3LDK+SC+WIC

専有面積

74.63㎡

バルコニー面積

19.89㎡

備考

※専有面積に、戸別宅配ボックス面積1.23㎡を含む
サービスバルコニー面積:1.07㎡

  • 玄関からリビングが見えない間取り
  • ウォークインクローゼット
  • 2面バルコニー
  • 北向き
プレミストタワー千里丘 間取り S-H TYPE
タイプ

S-H TYPE

間取り

3LDK+N+SC

専有面積

66.78㎡

バルコニー面積

13.42㎡

備考

※専有面積に、戸別宅配ボックス面積0.55㎡を含む

  • 玄関からリビングが見えない間取り
  • 西向き
プレミストタワー千里丘 間取り S-I TYPE
タイプ

S-I TYPE

間取り

3LDK+SC

専有面積

75.25㎡

バルコニー面積

16.25㎡

備考

※専有面積に、戸別宅配ボックス面積1.51㎡を含む
サービスバルコニー面積:1.07㎡

  • 玄関からリビングが見えない間取り
  • 2面バルコニー
  • 南向き
プレミストタワー千里丘 間取り S-N TYPE
タイプ

S-N TYPE

間取り

2LDK+WIC

専有面積

60.40㎡

バルコニー面積

13.16㎡

備考

※専有面積に、戸別宅配ボックス面積1.25㎡を含む

  • 玄関からリビングが見えない間取り
  • ウォークインクローゼット
  • 東向き
プレミストタワー千里丘 間取り S-P TYPE
タイプ

S-P TYPE

間取り

3LDK+WIC

専有面積

70.39㎡

バルコニー面積

18.35㎡

備考

※専有面積に、戸別宅配ボックス面積1.02㎡を含む
サービスバルコニー面積:1.07㎡

  • 玄関からリビングが見えない間取り
  • ウォークインクローゼット
  • 2面バルコニー
  • 北向き
プレミストタワー千里丘 間取り T-H TYPE
タイプ

T-H TYPE

間取り

3LDK+SIC+WIC+TR

専有面積

104.68㎡

バルコニー面積

26.50㎡

備考

※専有面積に、戸別宅配ボックス面積1.34㎡を含む、トランクルーム面積0.90㎡を含む
サービスバルコニー面積:1.07㎡

  • 玄関からリビングが見えない間取り
  • 広いリビング
  • ウォークインクローゼット
  • シューズインクローゼット
  • 2面バルコニー
  • トランクルーム
  • 北向き

このページの一番上へ