- 価格
-
3898万円~5948万円
月々の支払い額を見る
- 専有面積
-
62.06㎡~78.84㎡
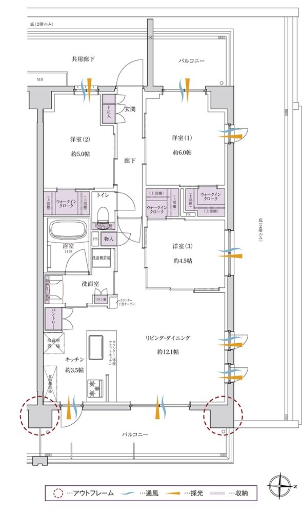
- 間取り
-
2LDK+S(納戸)~4LDK
間取りを見る(7件)
- 販売スケジュール
-
先着順申込受付中

