- 価格
-
5458万円~1億6500万円
月々の支払い額を見る
- 専有面積
-
66.65㎡~142.51㎡
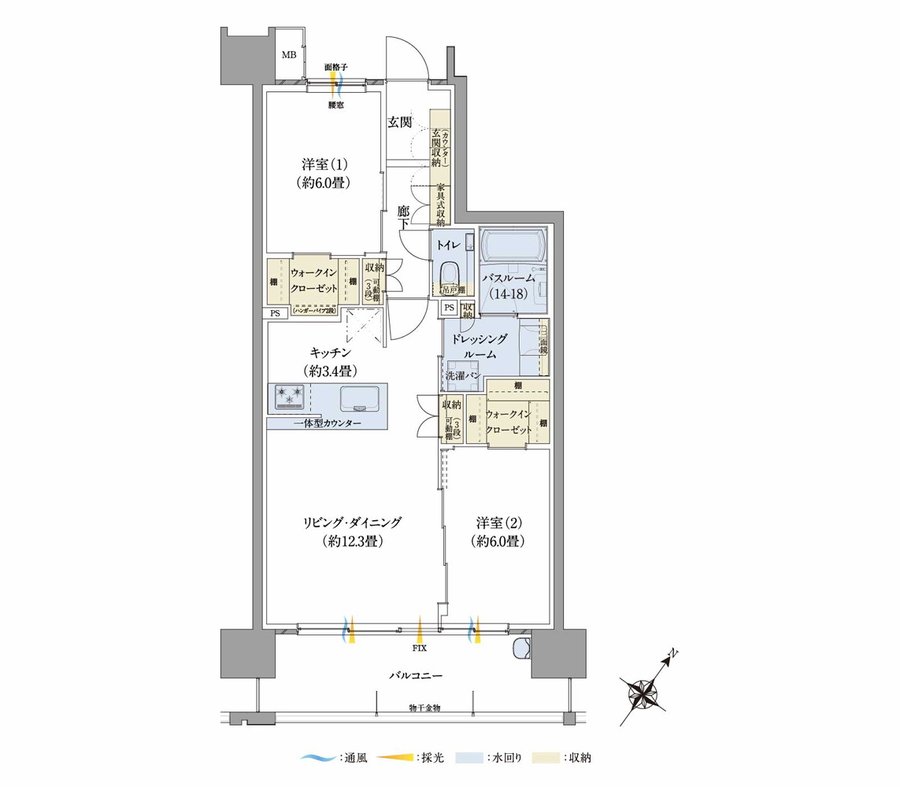
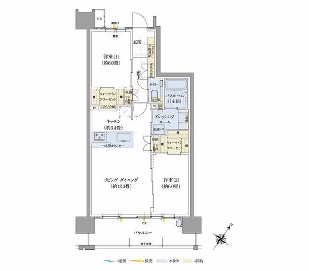
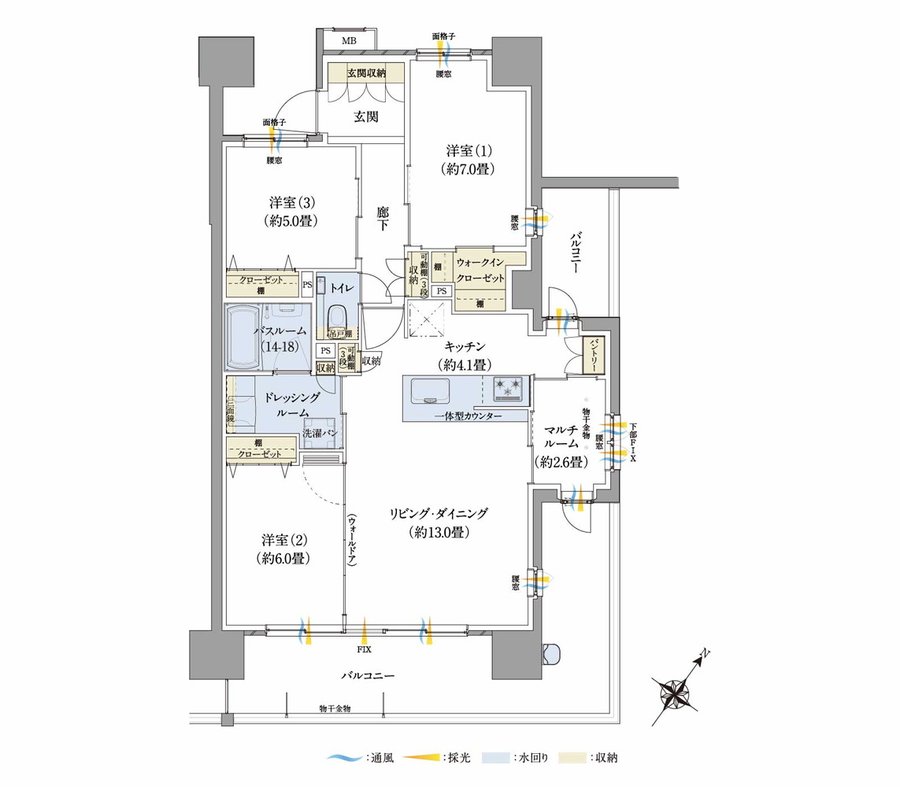
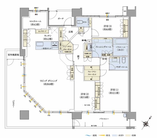
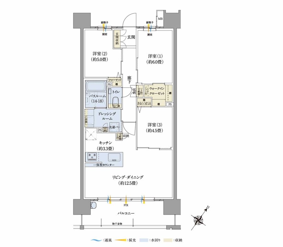
- 間取り
-
2LDK・3LDK
間取りを見る(5件)
- 販売スケジュール
-
先着順申込み受付中 受付場所/「サーパス八幡二丁目」マンションギャラリー

