サンパーク二日市駅グラッセ 間取り Aタイプ
タイプ

Aタイプ

間取り

4LDK+WIC

専有面積

82.5㎡

バルコニー面積

12.7㎡

  • 可変式間仕切り
  • ウォークインクローゼット
  • 浴室に窓
  • 南東向き
サンパーク二日市駅グラッセ 間取り Bタイプ
タイプ

Bタイプ

間取り

3LDK+WIC+SR

専有面積

71.5㎡

バルコニー面積

11.8㎡

  • 可変式間仕切り
  • ウォークインクローゼット
  • 南東向き
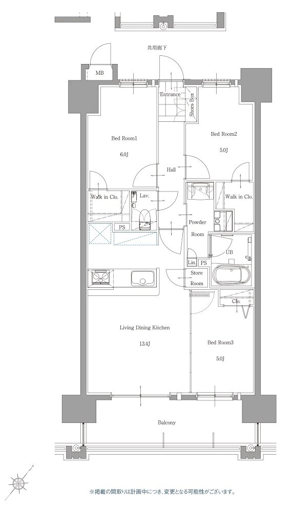
サンパーク二日市駅グラッセ 間取り Cタイプ
タイプ

Cタイプ

間取り

3LDK+2WIC+SR

専有面積

67.1㎡

バルコニー面積

11.08㎡

  • 可変式間仕切り
  • ウォークインクローゼット
  • 南東向き
サンパーク二日市駅グラッセ 間取り Dタイプ
タイプ

Dタイプ

間取り

3LDK+WIC

専有面積

76.16㎡

バルコニー面積

10.53㎡

  • 玄関からリビングが見えない間取り
  • 可変式間仕切り
  • ウォークインクローゼット
  • 浴室に窓
  • 南東向き

このページの一番上へ