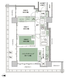
間取り
この物件の詳細情報に戻る〜1LDK(1R・1K・1DK含む)掲載2件
2LDK掲載6件
N:納戸 2WIC:2ウォークインクロゼット WIC:ウォークインクロゼット SIC:シューズインクロゼット
※掲載の図面は、施工上の都合・改良等により多少変更する場合があります。あらかじめご了承ください。
※掲載の図面は本タイプの基本図面です。階数・列により間取りが一部異なる場合があります。詳細は図面集をご確認ください。
関連する他の物件も見てみる
特徴
- 子どもと暮らす(166)
- 対面キッチン(164)
- I型キッチン(163)
- ウォークインクローゼット(160)
- 一人暮らし・二人暮らし向け(155)
- 床暖房(146)
- 玄関からリビングが見えない間取り(130)
- 複数沿線利用可能(126)
- 可変式間仕切り(123)
- シューズインクローゼット(122)
- 食器洗い乾燥機(食洗機)(109)
- 宅配ボックス(104)
- 浴室暖房換気乾燥機(96)
- 高級マンション・ハイグレードマンション(92)
- 複層ガラス(ペアガラス)(90)
- 2面バルコニー(90)
- 南向き(86)
- ペット可(82)
- 24時間ゴミ出し可能(79)
- 駅近(駅徒歩5分以内・駅直結)(76)
- 西向き(75)
- 防災設備(71)
- 東向き(70)
- ディスポーザー(68)
- エコマンション(65)
- 大規模マンション(64)
- 二重床/二重天井(59)
- 内廊下(58)
- ラウンジ(56)
- ミストサウナ(37)
- 耐震・免震・制振(33)
- バリアフリー(31)
- 広いリビング(31)
- 北向き(30)
- タワーマンション・高層マンション(27)
- L字バルコニー(25)
- ゲストルーム(23)
- 広いバルコニー(18)
- テレワーク・在宅勤務におすすめ(17)
- コンシェルジュサービス(16)
- フィットネスルーム(プール含む)(13)
地域
間取り
価格帯
不動産会社
駅
沿線

