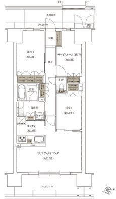
間取り
この物件の詳細情報に戻る2LDK掲載2件
※各基本プラン・メニュープランについては、階数によって異なりますのでマンションサロンまでお問い合わせください。
関連する他の物件も見てみる
特徴
- 子どもと暮らす(73)
- 対面キッチン(70)
- I型キッチン(70)
- ウォークインクローゼット(63)
- 一人暮らし・二人暮らし向け(58)
- アルコーブ(56)
- 複数沿線利用可能(50)
- 平置き駐車場(48)
- 可変式間仕切り(47)
- モデルルーム公開中(43)
- 駅近(駅徒歩5分以内・駅直結)(39)
- 玄関からリビングが見えない間取り(38)
- シューズインクローゼット(37)
- 宅配ボックス(35)
- 食器洗い乾燥機(食洗機)(35)
- 広いリビング(26)
- 大規模マンション(20)
- 高級マンション・ハイグレードマンション(19)
- 西向き(19)
- 電気自動車対応(18)
- 東向き(16)
- ラウンジ(13)
- 24時間ゴミ出し可能(8)
- コンシェルジュサービス(5)
- 屋上(屋上庭園含む)(1)
地域
間取り
価格帯
不動産会社
駅
沿線

