- 価格
-
4998万円~5548万円
月々の支払い額を見る
- 専有面積
-
64.12㎡~66.39㎡
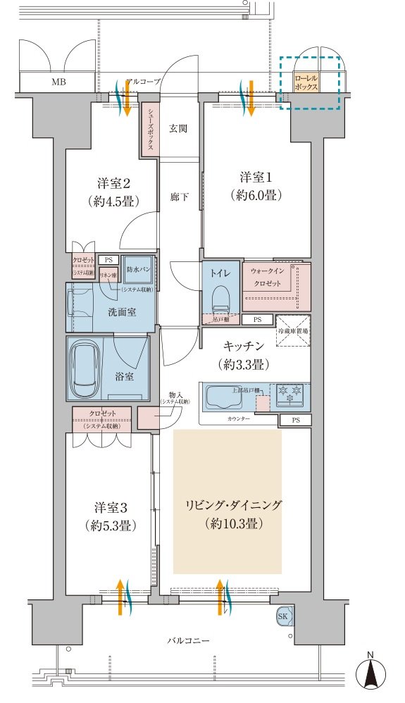
- 間取り
-
3LDK
間取りを見る(2件)
- 販売スケジュール
-
先着順申込受付中

